Appartement Paris 7e - 2 chambres - 111m²
75007 - Paris 7e
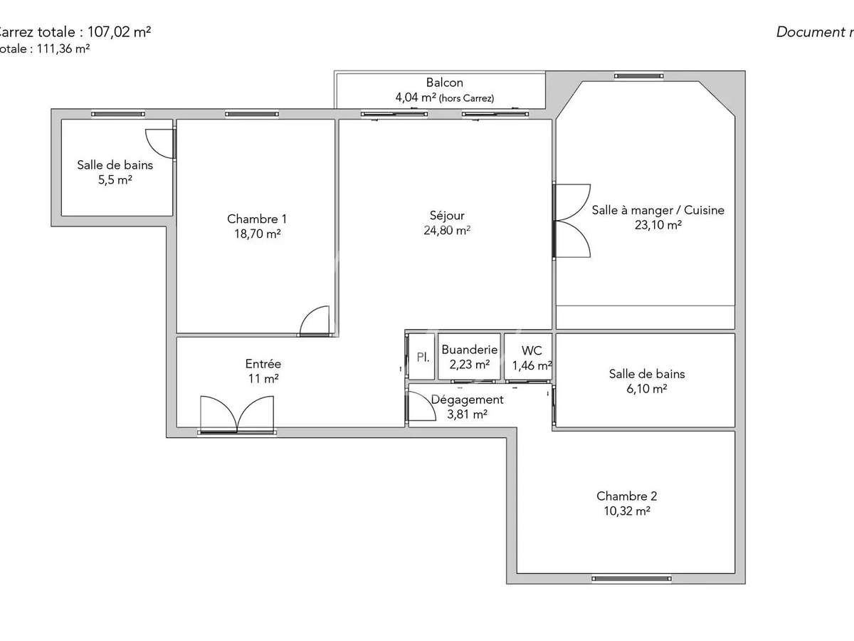
DESCRIPTIF
Situé au pied de la tour Eiffel et en première ligne du Champ de Mars, dans un magnifique immeuble haussmannien.Un élégant pied-à-terre de 107,02m² loi Carrez entièrement refait par architecte, à l'étage noble (deuxième étage) par ascenseur offrant une vue imprenable sur la tour Eiffel et le Champs de Mars, visibles depuis les pièces de vies ainsi que la chambre principale et sa salle de douche.
Au calme sur cour, une seconde chambre, sa salle de bains ainsi qu'une buanderie.Une cave complète ce bien d'exception.
- Vue imprenable sur la tour Eiffel et le Champ de Mars.
- Rénovation haut de gamme réalisée par un architecte.
Paris 7e - CHAMP DE MARS - Appartement à vendre -
Les informations sur les risques auxquels ce bien est exposé sont disponibles sur le site Géorisques :
Réf : 3437BTLVIL - Date : 18/04/2026
LES ATOUTS
CARACTÉRISTIQUES
DIAGNOSTICS ENERGETIQUES
LOCALISATION
NOUS CONTACTER
DEMANDE D'INFORMATIONS
Demander plus d’informations à JUNOT BRETEUIL.
























