Appartement Paris 7e - 3 chambres - 96m²
75007 - Paris 7e
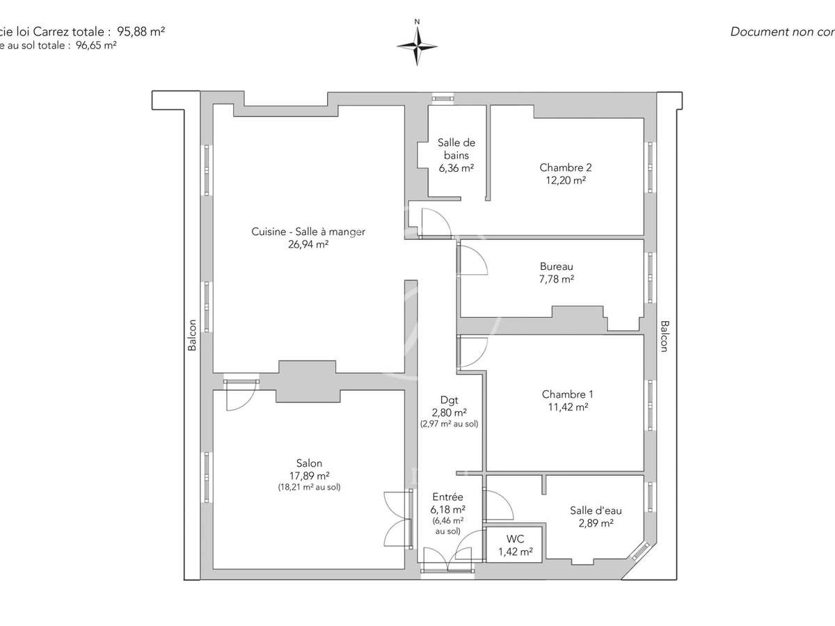
DESCRIPTIF
Au cœur du quartier du Gros Caillou, rue de l’Université, au cinquième étage par ascenseur d’un bel immeuble en pierre de taille avec gardienne, cet appartement de 95,88m² loi Carrez séduit par son élégance et son parfait état.Traversant, il bénéficie de vues dégagées,dont une remarquable perspective sur la tour Eiffel, ainsi que d’un agréable espace extérieur.L’entrée distribue une double réception composée d’un salon et d’une salle à manger, prolongée par une cuisine ouverte aménagée et équipée.L’espace nuit accueille deux chambres au calme sur cour avec rangements, un bureau pouvant faire office de troisième chambre ou de dressing, une salle de bains avec toilettes, une salle de douche ainsi que des toilettes indépendantes.L’ensemble conjugue avec harmonie le charme de l’ancien du parquet, des moulures, et de la cheminée à une rénovation contemporaine de qualité, dans une atmosphère élégante et feutrée.Une cave complète cette offre.EXCLUSIVITÉ.
- Vue imprenable sur la tour Eiffel et quartier prisé
- Double réception lumineuse avec salon et salle à manger
Paris 7e - GROS CAILLOU / UNIVERSITÉ - Appartement
Les informations sur les risques auxquels ce bien est exposé sont disponibles sur le site Géorisques :
Réf : 3573GREGEN - Date : 18/04/2026
LES ATOUTS
CARACTÉRISTIQUES
DIAGNOSTICS ENERGETIQUES
LOCALISATION
NOUS CONTACTER
DEMANDE D'INFORMATIONS
Demander plus d’informations à JUNOT GRENELLE.


























