Appartement Paris 6e - 1 chambre - 46m²
75006 - Paris 6e
DESCRIPTIF
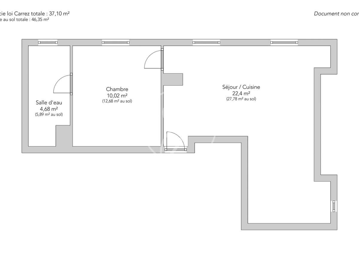
À quelques pas du carrefour de la Croix-Rouge et de la place Saint-Sulpice, au cœur de la très recherchée rue du Cherche-Midi, cet appartement de 37,10m² Carrez et 46,35m² au sol se situe au quatrième étage par escalier d’un immeuble ancien d’une grande élégance.Entièrement rénové avec un soin particulier apporté aux matériaux et aux finitions, il offre une atmosphère chaleureuse et parfaitement maîtrisée.
La pièce de vie, généreuse et harmonieusement agencée, accueille une cuisine ouverte aux lignes épurées, un espace salle à manger agrémenté d’une délicate banquette sur mesure, ainsi qu’un salon doté de rangements intégrés.
Les vélux baignent l’ensemble d’une lumière naturelle douce et constante, renforçant la sensation d’espace et de sérénité.
La chambre, confortable et parfaitement optimisée, dispose de grands rangements intégrés.
La salle de bains, également éclairée par un vélux, comprend des toilettes et un espace buanderie finement intégré, témoignant d’un aménagement pensé dans les moindres détails.Calme et lumineux, cet appartement en parfait état séduit par la qualité remarquable de sa rénovation et par son adresse emblématique du 6e arrondissement.
Il constitue un pied-à-terre raffiné ou une résidence principale idéale, et offre l'art de vivre typiquement parisien, entre Saint-Sulpice et les plus belles adresses de la Rive Gauche.EXCLUSIVITÉ.
- Emplacement Prisé : Situé rue du Cherche-Midi, à deux pas de Saint-Sulpice.
- Rénovation de Qualité : Finitions soignées et matériaux haut de gamme.
Paris 6e - CHERCHE-MIDI / CROIX-ROUGE - Appartemen
Les informations sur les risques auxquels ce bien est exposé sont disponibles sur le site Géorisques :
Réf : 2015CHMGIR - Date : 18/04/2026
CARACTÉRISTIQUES
DIAGNOSTICS ENERGETIQUES
LOCALISATION
NOUS CONTACTER
DEMANDE D'INFORMATIONS
Demander plus d’informations à JUNOT 6E.














