Appartement Paris 6e - 4 chambres - 135m²
75006 - Paris 6e
DESCRIPTIF
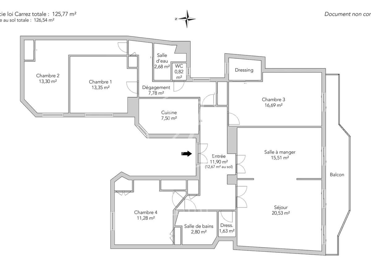
À proximité immédiate de Saint-Germain des Prés, cet élégant appartement familial et traversant de 125,77m² loi Carrez et 126,54m² au sol se situe au cinquième étage par ascenseur d’un bel immeuble ancien parfaitement entretenu.Baigné de lumière grâce à ses nombreuses ouvertures et à son exposition plein sud, il séduit par son large balcon et ses vues spectaculaires qui offrent des perspectives dégagées.Son plan optimal, sans perte d’espace, comporte une belle galerie d’entrée, une double réception aux volumes généreux, une cuisine aménagée et équipée, quatre grandes chambres dont une avec son dressing et trois au calme sur cour avec rangements, une salle de bains, une salle de douche et des toilettes indépendantes.Une chambre de service de 7,30m² loi Carrez et 8,70m² au sol située au sixième étage par ascenseur ainsi qu'une cave complètent cette offre.Ce bien d’exception, rare sur le marché, conjugue adresse prestigieuse, espace extérieur, vues iconiques et volumes familiaux.EXCLUSIVITÉ.
- Élégance de l'immeuble ancien parfaitement entretenu.
- Luminosité grâce à une exposition plein sud et de nombreuses fenêtres.
Paris 6e - SAINT-GERMAIN DES PRÉS - Appartement à
Les informations sur les risques auxquels ce bien est exposé sont disponibles sur le site Géorisques :
Réf : 1977CHMDEP - Date : 18/04/2026
LES ATOUTS
CARACTÉRISTIQUES
DIAGNOSTICS ENERGETIQUES
LOCALISATION
NOUS CONTACTER
DEMANDE D'INFORMATIONS
Demander plus d’informations à JUNOT 6E.

















