Appartement Paris 6e - 3 chambres - 132m²
75006 - Paris 6e
DESCRIPTIF
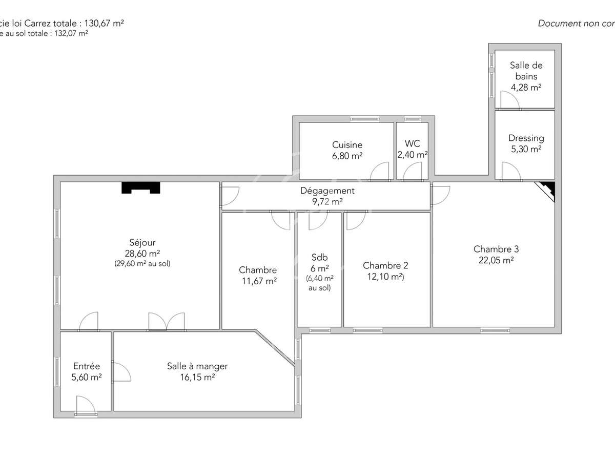
Idéalement situé dans le 6e arrondissement, à deux pas de la Place Furstemberg, un sublime appartement au sein d'un immeuble du XVIIe siècle, classé aux Monuments Historiques, aux parties communes récemment rénovées.Situé au deuxième étage sur entresol, ce bien de 130,67m² loi Carrez (132,07m² au sol) séduit par ses beaux volumes (3,75m de hauteur sous plafond) et ses éléments d'époque (parquet en point de Hongrie, cheminées et moulures d’origine).
Il se compose d’une d’entrée avec fenêtre, d’un séjour aux beaux volumes avec cheminée fonctionnelle donnant sur la rue, suivi d'une salle à manger avec une vue dégagée sur la cour et sur l’église de Saint-Germain-des-Prés.Un dégagement mène à une cuisine indépendante, une vaste suite parentale de 32m² avec cheminée (possible de rajouter des toilettes), deux chambres, une salle de bains et de toilettes séparés.Une cave complète ce bien.Très calme et lumineux grâce à sa triple exposition et ses vues dégagées, le tout dans un quartier recherché.
- Emplacement privilégié à deux pas de la place Furstemberg.
- Hauteur sous plafond de 3,75 m offrant de beaux volumes.
Paris 6e - JACOB - Appartement à vendre - 5 pièces
Les informations sur les risques auxquels ce bien est exposé sont disponibles sur le site Géorisques :
Réf : 3621BREHUC/2038CHM - Date : 18/04/2026
LES ATOUTS
CARACTÉRISTIQUES
DIAGNOSTICS ENERGETIQUES
LOCALISATION
NOUS CONTACTER
DEMANDE D'INFORMATIONS
Demander plus d’informations à JUNOT 6E.















