Appartement Bordeaux - 3 chambres - 104m²
33000 - Bordeaux
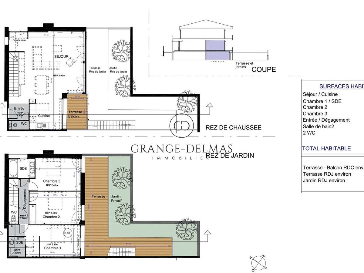
DESCRIPTIF
BORDEAUX - CROIX BLANCHE.
L'agence GRANGE DELMAS vous propose à la vente ce magnifique appartement neuf aux prestations haut de gamme, situé au rez-de-chaussée d'une petite copropriété élégante, au calme, au coeur du quartier Croix-Blanche.
L'entrée ouvre sur un grand séjour avec cuisine ouverte et espace bureau.
Les grandes baies vitrées donnent sur une terrasse à la vue dégagée.
Wc.
Le rez-de-jardin accueille la partie nuit composée de 3 chambre, dont 1 chambre parents avec dressing et salle d'eau privative, une salle de bain et un wc.
les 3 chambres ont toutes un accès à une grande terrasse de 27m² et un jardin privatif de 26m².
Un stationnement extérieur et un local vélo sécurisé complètent ce bien aux beaux volumes et aux prestations de standing.
Proche des écoles, des commerces et des transports.
Prix : 699.000EUR
- Grandes terrasses de 27 m² et jardin privatif de 26 m².
- Prestations haut de gamme dans une copropriété élégante.
Appartement duplex avec terrasse et stationnement - SAINT SEURIN
Réf : 1119_59482667 - Date : 04/02/2026
LES ATOUTS
CARACTÉRISTIQUES
DIAGNOSTICS ENERGETIQUES
LOCALISATION
NOUS CONTACTER
DEMANDE D'INFORMATIONS
Demander plus d’informations à GRANGE DELMAS IMMOBILIER.











