Apartment with Sea view Cannes
06400 - Cannes
DESCRIPTION
At the heart of a prestigious residence in the Californie area, close to shops and beaches, discover these two fully-renovated apartments with quality features.
A RECEPTION APARTMENT
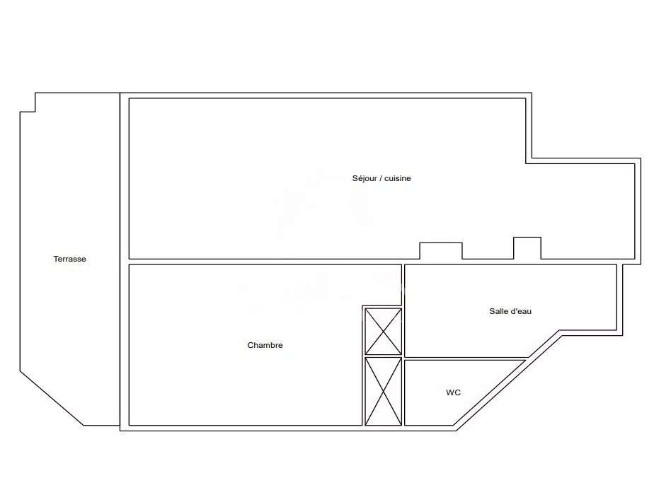
On the 6th floor, a 92 m² 4-room apartment with exceptional sea views.
A double living room with an equipped kitchen, a spacious terrace, three en suite bedrooms, each with its own shower room.
Guest toilet.
Cellar and garage.
A GUEST APARTMENT
On the garden level, a 2-room apartment of approx.
40m2 with a living room, terrace, bedroom and shower room.
A cellar.
The two apartments can be sold separately.
Complete files on request.
Agency fees are payable by the seller.
Information on the risks to which this property is exposed is available at:
- Exceptional sea view over the bay of Cannes.
- High-quality renovation with premium features.
- Spacious terrace to enjoy outdoor living.
Cannes Californie - Two apartments in a luxury residence
Information on the risks to which this property is exposed is available on the Géorisques website :
Ref : FRE-00872 - Date : 13/03/2026
FEATURES
DETAILS
ENERGY DIAGNOSIS
LOCATION
CONTACT US
INFORMATION REQUEST
Request more information from CARLTON GROUP CANNES.





















