Terrain Orto - 2059m²
20125 - Orto
DESCRIPTIF
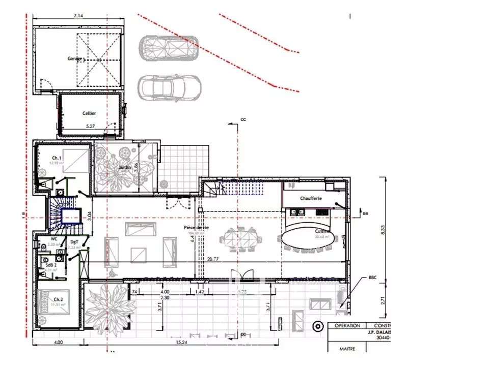
RV842-E7 – ArasuÀ deux pas de la baie de Saint-Cyprien, ce terrain d’environ 2 059 m² fait partie d’un lotissement confidentiel de 15 lots, au cœur d’un cadre naturel et résidentiel.Vendu avec un permis de construire purgé pour une villa de 240 m², un garage de50 m² et une piscine de 65 m².
Le suivi du chantier est assuré par l’architecte du domaine.Terrain viabilisé et raccordé au tout-à-l’égout, idéal pour profiter de la douceur de vivre corse entre mer et maquis.Proche de l’aéroport de Figari et du port de Porto-Vecchio, emplacement privilégié pour une résidence secondaire ou un projet familial.Honoraires à la charge du vendeur.Frais de permis et maîtrise d’œuvre en supplément.
- Emplacement privilégié à deux pas de la baie de Saint-Cyprien.
- Terrain viabilisé et raccordé au tout-à-l’égout pour un projet facilité.
Arasu, Terrain à bâtir d'environ 2 059 m² avec per
Les informations sur les risques auxquels ce bien est exposé sont disponibles sur le site Géorisques :
Réf : RV842-E7 - Date : 28/11/2025
CARACTÉRISTIQUES
DIAGNOSTICS ENERGETIQUES
LOCALISATION
NOUS CONTACTER
DEMANDE D'INFORMATIONS
Demander plus d’informations à BARNES CORSE.













