Terrain Orto - 2499m²
20125 - Orto
DESCRIPTIF
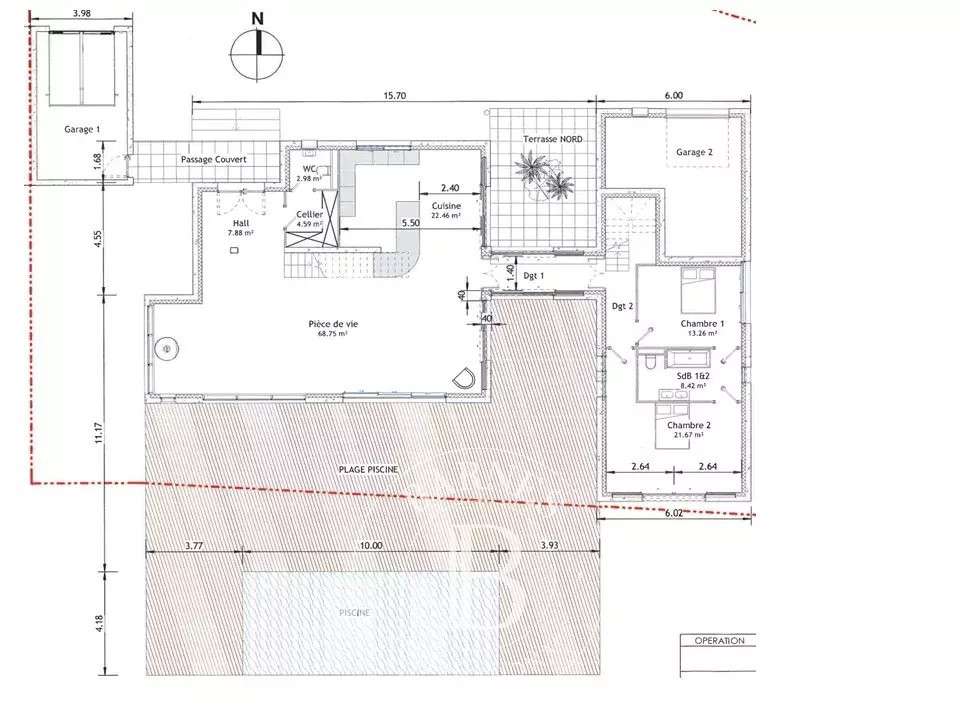
RV842-E2 – ArasuDans la baie de Saint Cyprien, à deux pas de la mer, ce terrain d'environ 2 499 m² offre un cadre de vie exceptionnel.Le projet inclut une villa contemporaine de 210 m² avec hall d’entrée, séjour lumineux avec cuisine ouverte, 2 chambres, salle de douche, cellier, 2 garages, et une suite parentale avec dressing et salle d’eau à l’étage.
Une piscine de 63 m² complète ce havre de paix.Situé dans un lotissement de 15 lots viabilisés, au calme et à quelques minutes à pied de la plage, proche de l’aéroport de Figari et du port de Porto Vecchio.Honoraires à la charge du vendeur.
- Terrain spacieux d'environ 2 499 m², avec de belles perspectives.
- À proximité immédiate de la mer et des commodités locales.
Arasu , Terrain à bâtir d'environ 2 499 m² avec pe
Les informations sur les risques auxquels ce bien est exposé sont disponibles sur le site Géorisques :
Réf : RV1293 - E2 - Date : 28/11/2025
CARACTÉRISTIQUES
DIAGNOSTICS ENERGETIQUES
LOCALISATION
NOUS CONTACTER
DEMANDE D'INFORMATIONS
Demander plus d’informations à BARNES CORSE.











