Maison Colombes - 5 chambres - 280m²
92700 - Colombes
DESCRIPTIF
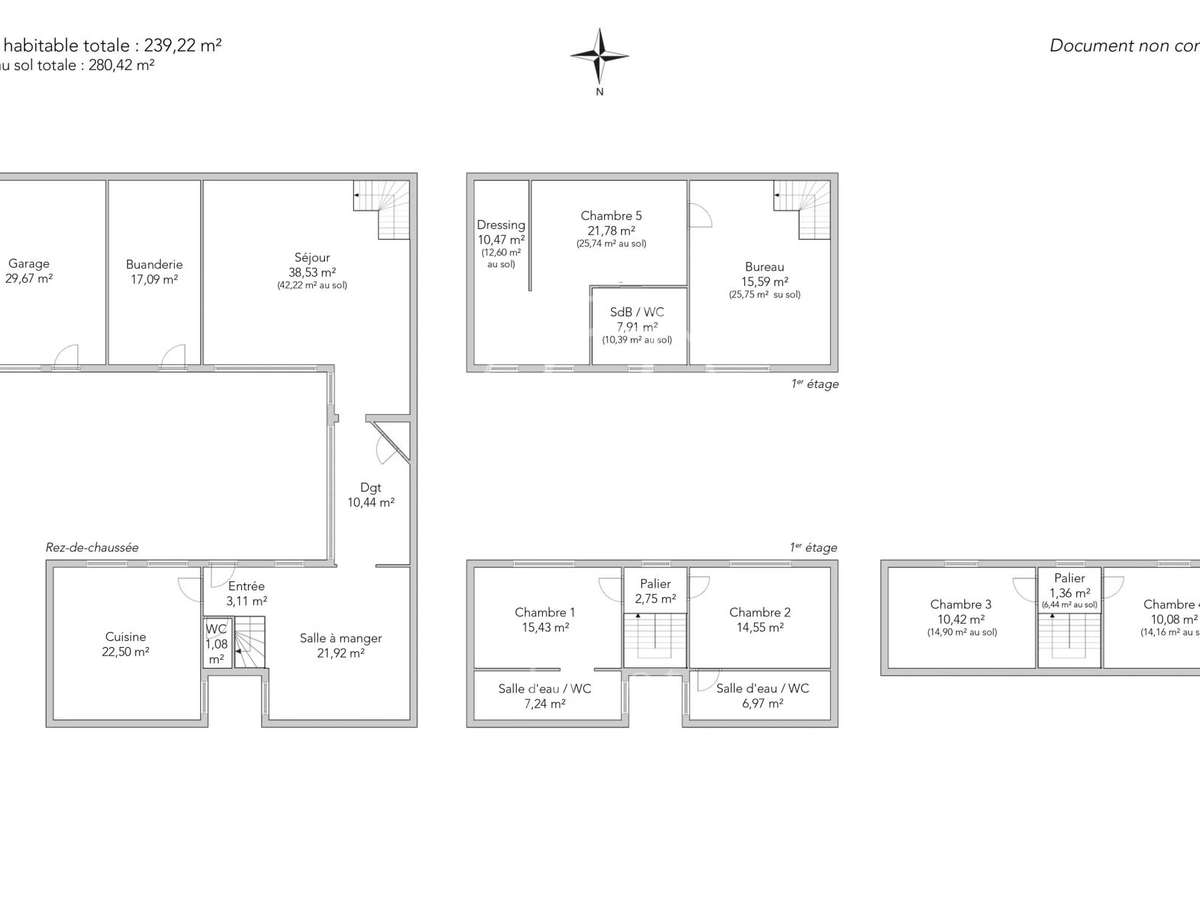
Au sein d'une impasse privée et à proximité immédiate des commerces et des transports, 2 anciens corps de bâtiments datant de 1930 remarquablement réhabilités pour devenir une magnifique maison familiale de 239,22m².Dès l'entrée, les volumes majestueux, la verrière et le patio arboré orienté sud signent l'identité du lieu.
Cette demeure, unique sur le secteur, se compose, au rez de chaussée, d'une entrée, d'une cuisine dinatoire de 22,5m², d'une salle à manger ouvrant sur le patio, d'un salon chaleureux de 39m² avec cheminée et de toilettes invitées.
Un escalier en béton ciré structure l'espace et dessert le 1er étage composé d'une mezzanine de 15m² faisant office de bureau, d'une suite parentale de 40m² (chambre, salle de bains et dressing), et de 2 autres suites avec chacune leur salle de bains et toilettes.
Au 2eme , un palier dessert 2 chambres.Une cave à vin, une buanderie de 17m² et un garage de 30m² complètent le bien.Ce bien singulier, aux prestations contemporaines se distingue par son architecture, ses volumes et sa discrétion.Il constitue une opportunité rare sur Colombes.Sectorisation scolaire Maintenon.
Institution Jeanne d'Arc à proximité.01 87 22....
- Emplacement privilégié dans une impasse privée, près des commerces.
- Architecture unique alliant style contemporain et éléments d'origine.
Colombes - Centre ville - Maison de 239m² - 5 cham
Les informations sur les risques auxquels ce bien est exposé sont disponibles sur le site Géorisques :
Réf : 2328NEURIB - Date : 18/04/2026
LES ATOUTS
CARACTÉRISTIQUES
DIAGNOSTICS ENERGETIQUES
LOCALISATION
NOUS CONTACTER
DEMANDE D'INFORMATIONS
Demander plus d’informations à JUNOT NEUILLY.

























