Maison Colombes - 4 chambres - 429m²
92700 - Colombes
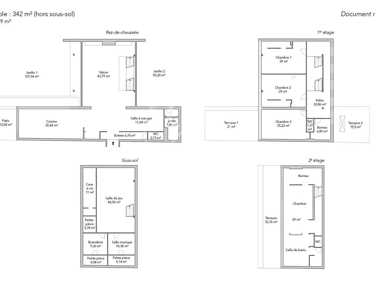
DESCRIPTIF
En plein cœur du secteur des Vallées, magnifique maison d'architecte bâtie en 2013, de 342m² environ, nichée dans la verdure, au calme absolu et à l'abri des regards.Cette demeure, majestueuse par ses volumes et traversante, se compose d'une entrée, d'un espace de réception de 84m² ouvrant directement sur un jardin paysagé orienté sud avec un bassin japonais, une cuisine dinatoire entièrement aménagée et équipée donnant sur une terrasse plus ombragée pour les déjeuners d'été ainsi que sur le jardin, une salle à manger, et des toilettes invitées.
Au 1er étage, un palier dessert trois suites dont 2 avec leur salle de douche, un bureau, des toilettes et deux terrasses végétalisées de 27 et 15m².Au 2ème étage, l'espace parental composé d'une master suite de 69m² avec un dressing, une salle de bains, un espace bureau, des toilettes séparées et un espace de sport, le tout ouvrant sur une terrasse plein ciel de 33m².Un sous-sol de 88m² complète le bien, avec une salle de jeux, une cave à vin, une buanderie et deux pièces aménagées.
Stationnement pour deux voitures.Ses volumes majestueux, son architecture, ses prestations de grande qualité, ses espaces extérieurs en font un bien unique sur le secteur.Sectorisation scolaire Lazare Carnot et collège Lakanal.
Institution Jeanne d'Arc à proximité.Isabelle RIBUOT - EI - Agent commercial - N° RSAC : 535105373 - Nanterre0670792127
- Espaces généreux : 342m² sous une architecture contemporaine.
- Jardin paysagé : Espace extérieur intime avec bassin japonais.
Colombes - LES VALLÉES - Maison 342m² - Jardin - T
Les informations sur les risques auxquels ce bien est exposé sont disponibles sur le site Géorisques :
Réf : 2327NEURIB - Date : 18/04/2026
LES ATOUTS
CARACTÉRISTIQUES
DIAGNOSTICS ENERGETIQUES
LOCALISATION
NOUS CONTACTER
DEMANDE D'INFORMATIONS
Demander plus d’informations à JUNOT NEUILLY.











