Appartement Paris 9e - 4 chambres - 159m²
75009 - Paris 9e
DESCRIPTIF
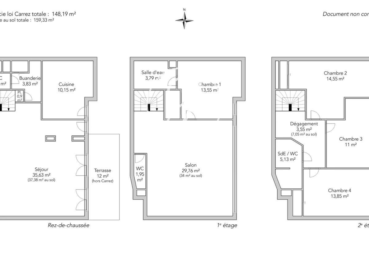
Au cœur du 9e arrondissement, cette maison de ville de 148,19m² loi Carrez (159,33m² au sol) offre un cadre de vie rare à Paris.Répartie sur plusieurs niveaux, elle propose au premier niveau un bel espace de vie avec cuisine séparée.
Le deuxième niveau accueille un salon, une chambre avec salle de douche ainsi que des toilettes séparées.Au dernier niveau, vous trouverez trois chambres ainsi qu’une salle de douche avec toilettes.Son agencement fonctionnel et modulable, ainsi que ses beaux volumes, en font un bien particulièrement adapté à une vie de famille.Située dans une copropriété de qualité, cette adresse recherchée bénéficie d’un environnement agréable, à proximité immédiate des commerces, écoles et transports.Un bien spacieux, bien distribué et idéalement situé, au cœur d’un quartier vivant et recherché.Possibilité d’acquérir un emplacement de parking en sous-sol.EXCLUSIVITÉ
- Agencement fonctionnel et modulable pour une vie familiale agréable.
- Beaux volumes garantissant confort et espace.
Paris 9e - TRUDAINE / CONDORCET - Triplex - 148,19
Les informations sur les risques auxquels ce bien est exposé sont disponibles sur le site Géorisques :
Réf : 3635STGDIR - Date : 30/04/2026
LES ATOUTS
CARACTÉRISTIQUES
DIAGNOSTICS ENERGETIQUES
LOCALISATION
NOUS CONTACTER
DEMANDE D'INFORMATIONS
Demander plus d’informations à JUNOT SAINT GEORGES.




























