Appartement Paris 9e - 2 chambres - 97m²
75009 - Paris 9e
DESCRIPTIF
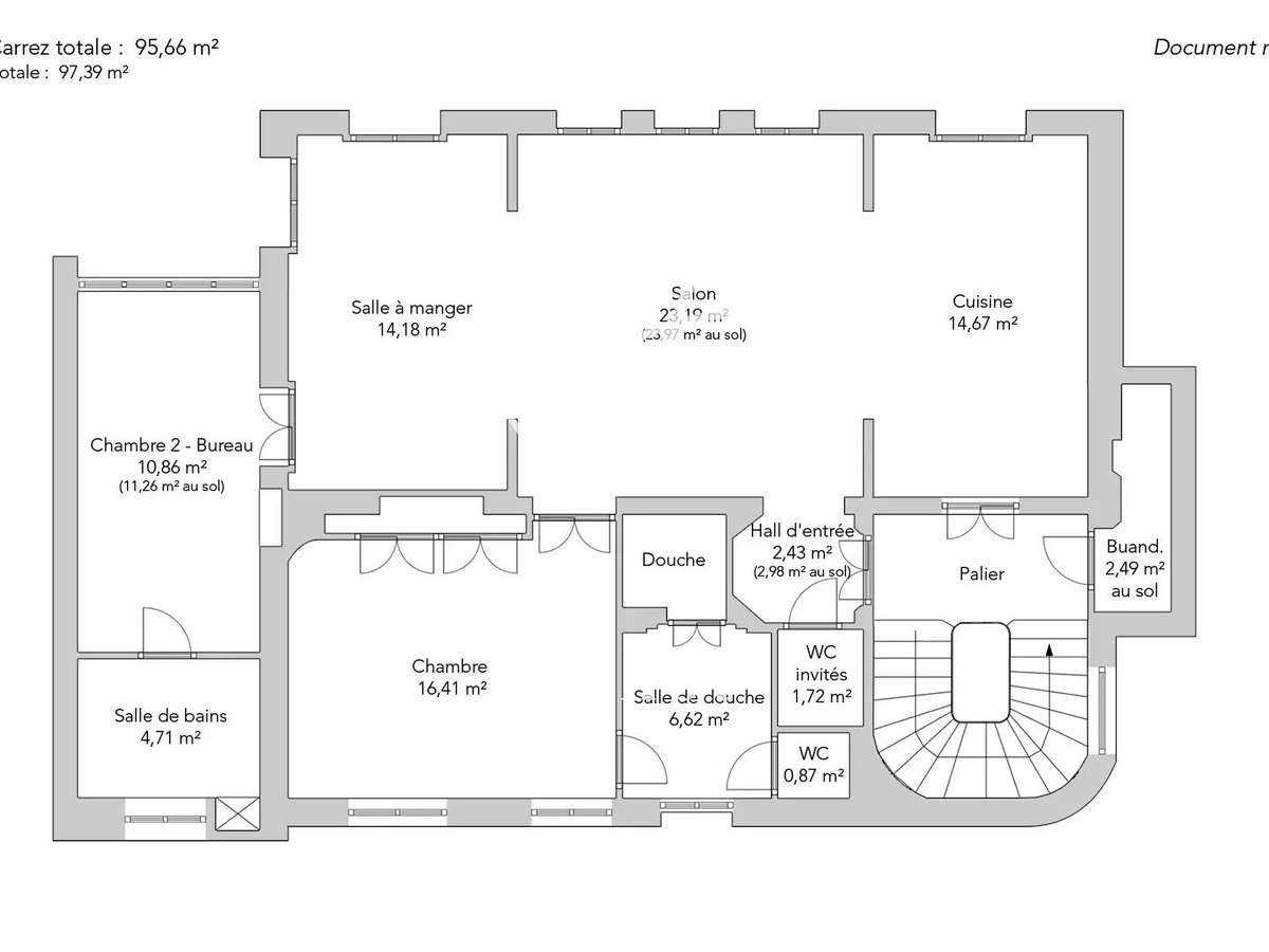
Dans le calme et la verdure d’une charmante voie privée historique et très prisée, en plein cœur du 9ᵉ arrondissement, découvrez cet élégant appartement de quatre pièces situé au premier étage.Ce bien a fait l’objet d’une rénovation exceptionnelle réalisée par des architectes de renommée internationale, qui ont su préserver l’âme du lieu tout en y intégrant un confort moderne et un style intemporel.
Les volumes généreux, la luminosité rare grâce aux nombreuses fenêtres et l’agencement traversant en font un bien d’exception.Il comporte une entrée, un salon et une salle à manger avec cheminée, sublimés par quatre magnifiques fenêtres arrondies qui baignent l’espace de lumière.
Une cuisine ouverte complète cet espace de vie convivial.La chambre principale dispose de nombreux rangements ainsi que d’une salle de douche avec toilettes attenantes.
Une seconde chambre bénéficie d’une salle de bains avec toilettes.
L’appartement comprend également des toilettes séparées et une buanderie.Il séduira par son emplacement idéal, le raffinement de sa rénovation et son charme unique.Un lieu rare dans un quartier très prisé.
- Rénovation architecturale par des professionnels de renommée internationale.
- Luminosité exceptionnelle grâce à des fenêtres arrondies dans le salon.
Paris 9e - AVENUE FROCHOT - Appartement à vendre -
Les informations sur les risques auxquels ce bien est exposé sont disponibles sur le site Géorisques :
Réf : 811JFPLON - Date : 30/04/2026
LES ATOUTS
CARACTÉRISTIQUES
DIAGNOSTICS ENERGETIQUES
LOCALISATION
NOUS CONTACTER
DEMANDE D'INFORMATIONS
Demander plus d’informations à JUNOT FINE PROPERTIES.

















