Appartement Paris 7e - 1 chambre - 50m²
75007 - Paris 7e
DESCRIPTIF
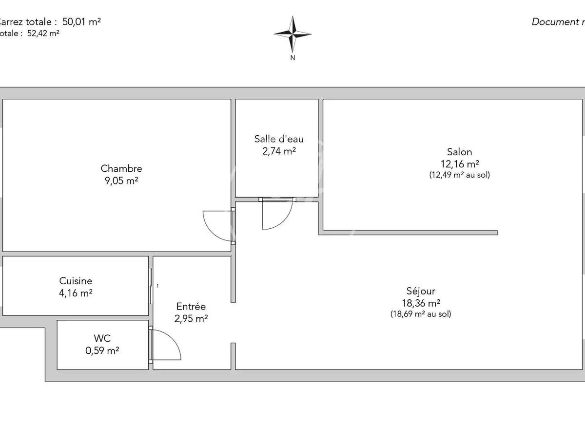
À proximité de l'École Militaire et des commerces, dans une rue calme, ravissant appartement lumineux et traversant de 50,01m² loi Carrez situé au quatrième étage par ascenseur.Il comporte un double séjour donnant sur rue, une cuisine séparée aménagée et équipée sur cour,une chambre au grand calme sur cour, un dressing, une salle de douche attenante à la chambre et des toilettes séparées avec fenêtre.Une cave complète cette offre.
- Luminosité optimale grâce à une exposition favorable.
- Quartier calme, proche de l'École Militaire et de boutiques.
Paris 7e - GROS CAILLOU / EXPOSITION - Appartement
Les informations sur les risques auxquels ce bien est exposé sont disponibles sur le site Géorisques :
Réf : 3258GREANN - Date : 18/04/2026
LES ATOUTS
CARACTÉRISTIQUES
DIAGNOSTICS ENERGETIQUES
LOCALISATION
NOUS CONTACTER
DEMANDE D'INFORMATIONS
Demander plus d’informations à JUNOT GRENELLE.




















