Appartement Paris 18e - 3 chambres - 112m²
75018 - Paris 18e
DESCRIPTIF
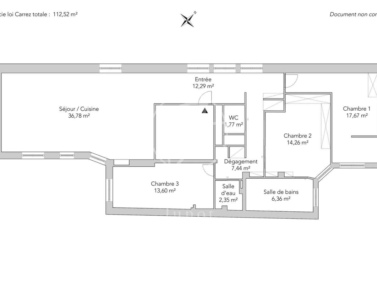
Au sein d’un bel immeuble en pierre de taille avec gardien, superbe appartement familial de 112,52m² loi Carrez au premier étage par ascenseur, entièrement rénové avec goût et élégance.Ce bien se distingue par la qualité de ses prestations et son agencement parfaitement optimisé.Il se compose d’une entrée avec de nombreux rangements sur mesure, d’un vaste double séjour avec cuisine ouverte, baigné de lumière grâce à une double exposition est et ouest, offrant un cadre de vie convivial et raffiné.L’espace nuit propose une suite parentale avec salle de bains et douche, deux autres grandes chambres, une salle de douche indépendante, un espace buanderie et des toilettes séparées.Au calme absolu et avec son séjour baigné de lumière , cet appartement séduit par ses volumes harmonieux, ses finitions soignées et ses nombreux rangements intégrés.Emplacement recherché au pied de Montmartre, à proximité immédiate des commerces, des écoles et des transports.Une cave complète ce bien.Parking vélos dans la cour.EXCLUSIVITÉ.
- Rénovation élégante : Appartement entièrement rénové avec des finitions de qualité.
- Emplacement privilégié : À proximité des commerces, écoles et transports.
Paris 18e - RUE ORDENER/DAMREMONT - Appartement à
Les informations sur les risques auxquels ce bien est exposé sont disponibles sur le site Géorisques :
Réf : 2944MONREI/5840JUN - Date : 03/03/2026
LES ATOUTS
CARACTÉRISTIQUES
DIAGNOSTICS ENERGETIQUES
LOCALISATION
NOUS CONTACTER
DEMANDE D'INFORMATIONS
Demander plus d’informations à JUNOT MONTMARTRE.
























