Appartement Paris 18e - 3 chambres - 99m²
75018 - Paris 18e
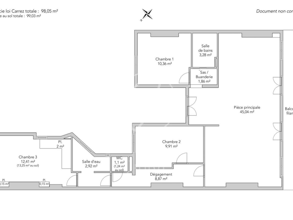
DESCRIPTIF
À proximité immédiate du métro et des commerces de la rue Lepic.Au cinquième et dernier étage par escalier d'un bel immeuble ancien, seul sur le palier, appartement ensoleillé de 98,05m² loi Carrez, refait entièrement par architecte.Le plan, parfaitement optimisé,comporte une entrée, une vaste pièce de vie avec cuisine ouverte donnant sur un balcon filant exposé sud-ouest et offrant une jolie vue dégagée.Coté nuit, trois chambres dont une suite avec salle de douche et une salle de bains.
Une cave complète ce bien.EXCLUSIVITÉ.
- Emplacement privilégié : Proche du métro et des commerces animés.
- Rénovation de qualité : Entièrement refait par un architecte de renom.
Paris 18e - BLANCHE / LEPIC - Appartement à vendre
Les informations sur les risques auxquels ce bien est exposé sont disponibles sur le site Géorisques :
Réf : 3449ABBBOI - Date : 18/04/2026
LES ATOUTS
CARACTÉRISTIQUES
DIAGNOSTICS ENERGETIQUES
LOCALISATION
NOUS CONTACTER
DEMANDE D'INFORMATIONS
Demander plus d’informations à JUNOT ABBESSES.





























