Appartement Paris 17e - 4 chambres - 161m²
75017 - Paris 17e
DESCRIPTIF
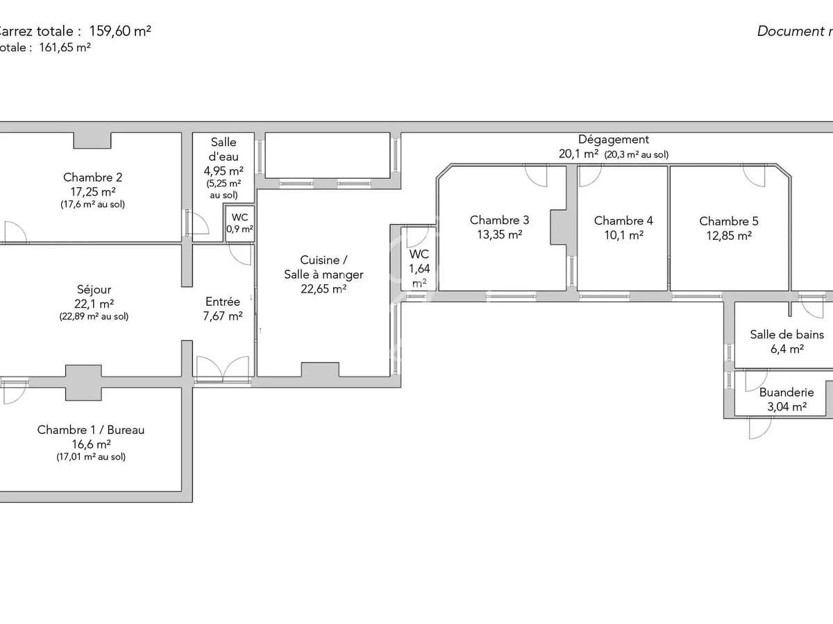
Rue de Prony;Au troisième étage par ascenseur d'un très bel immeuble en pierre de taille avec gardienne à demeure, superbe appartement de 159,60m² loi Carrez.Il comprend une entrée, un séjour, une salle à manger avec cuisine ouverte, un bureau, quatre chambres dont une suite parentale avec salle de douche et dressing, une salle de bains et deux toilettes séparées.Ce bien bénéficie de très beaux volumes avec plus de 3,20m de hauteur sous plafond et a su conserver le charme de l'ancien: parquet en point de Hongrie, moulures et cheminées.Deux caves complètent cette offre.Emplacement très recherché à proximité immédiate du parc Monceau.Sectorisation Carnot.
- Emplacement privilégié: À deux pas du parc Monceau.
- Rénovation de qualité: Charmant, avec parquet et moulures.
Paris 17e - RUE DE PRONY / MONCEAU - Appartement à
Les informations sur les risques auxquels ce bien est exposé sont disponibles sur le site Géorisques :
Réf : 5654JUNBEA/2776TERGUI - Date : 18/04/2026
LES ATOUTS
CARACTÉRISTIQUES
DIAGNOSTICS ENERGETIQUES
LOCALISATION
NOUS CONTACTER
DEMANDE D'INFORMATIONS
Demander plus d’informations à JUNOT COURCELLES.

























