Appartement Paris 17e - 2 chambres - 82m²
75017 - Paris 17e
DESCRIPTIF
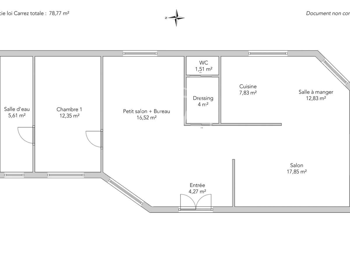
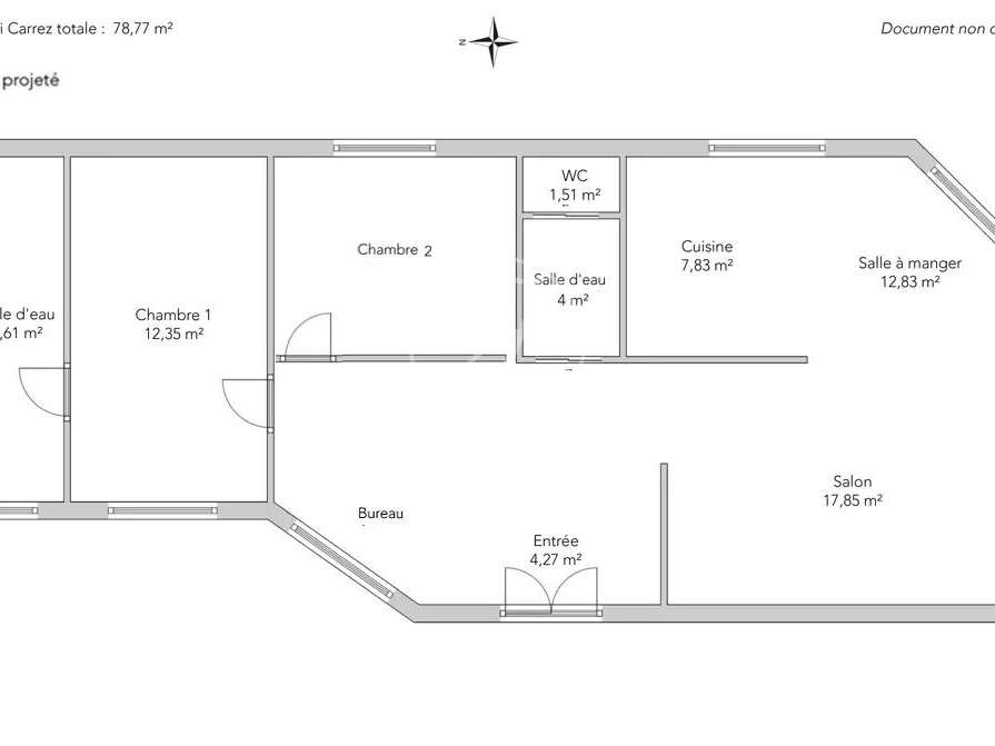
À deux pas du parc Monceau, au quatrième étage par ascenseur d’un bel immeuble en pierre de taille, appartement traversant de 82,77m² loi Carrez donnant entièrement sur cour et bénéficiant d’un calme absolu.Récemment rénové par architecte, il se compose d’une entrée, d’un salon, d'un séjour lumineux, d’une cuisine ouverte orientée sud-est, d’une chambre principale avec sa salle de douche attenante ainsi que d’un second espace pouvant servir de bureau ou de chambre d’appoint, d'un dressing et d'une buanderie et de toilettes séparées.L’appartement offre une belle luminosité tout au long de l’année ainsi que de nombreux rangements.Gardien à demeure.Deux caves complètent ce bien.
- Rénovation moderne par architecte alliant confort et style.
- Calme absolu grâce à sa position sur cour lumineuse.
Paris 17e - MONCEAU / CHAZELLES - Appartement à ve
Les informations sur les risques auxquels ce bien est exposé sont disponibles sur le site Géorisques :
Réf : 3430ABBRAF2/2958 - Date : 18/04/2026
LES ATOUTS
CARACTÉRISTIQUES
DIAGNOSTICS ENERGETIQUES
LOCALISATION
NOUS CONTACTER
DEMANDE D'INFORMATIONS
Demander plus d’informations à JUNOT COURCELLES.
























