Appartement Paris 17e - 2 chambres - 96m²
75017 - Paris 17e
DESCRIPTIF
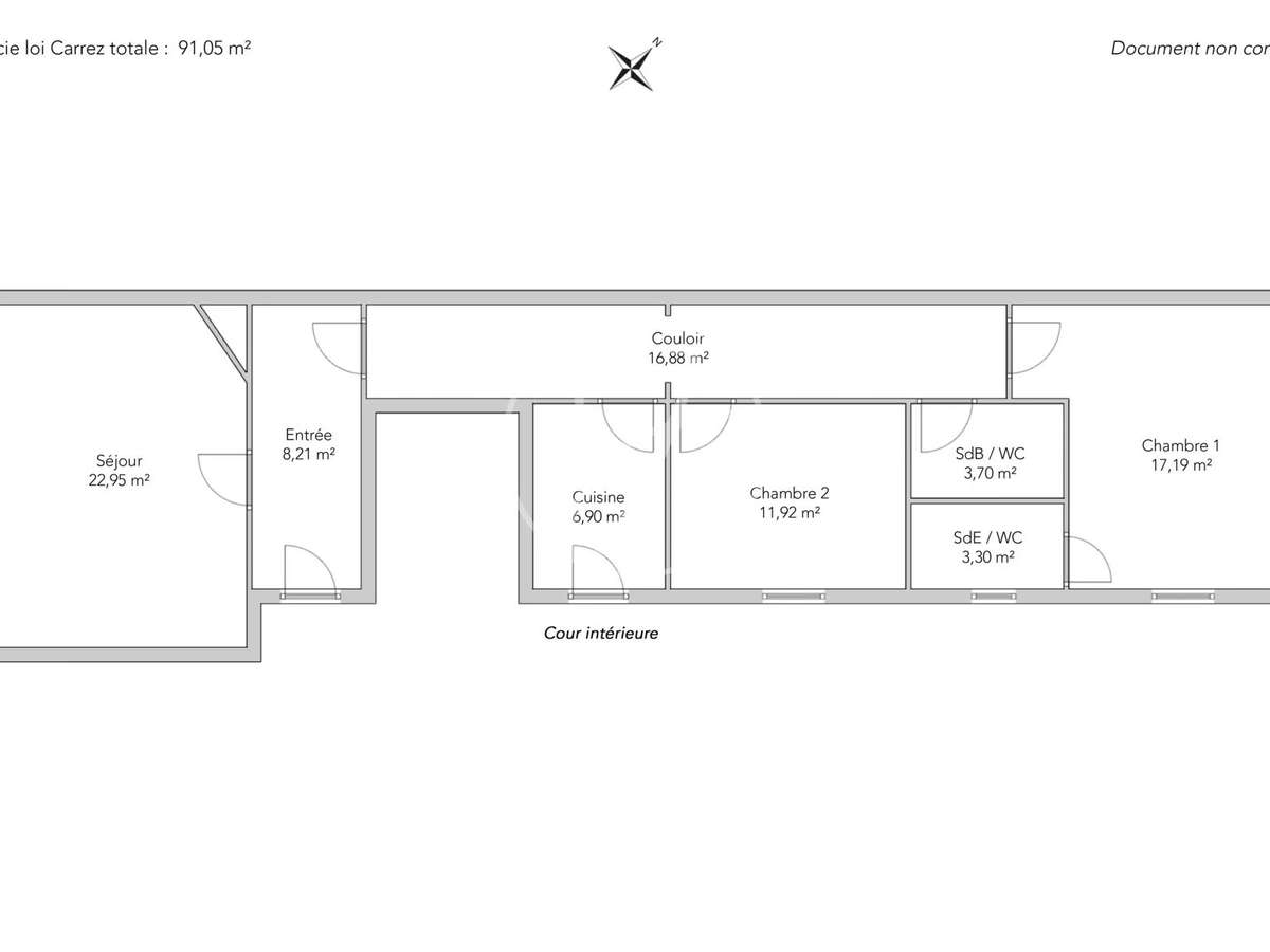
Dans une rue calme du 17ᵉ arrondissement, au sein d’un immeuble ancien gardienné et très bien entretenu, cet appartement de 91,05m² loi Carrez se situe au rez-de-chaussée.La distribution est fluide, avec un plan sans perte de place : l'entrée donne sur un agréable séjour exposé sud-ouest sur rue, la cuisine indépendante est entièrement équipée et donne sur une jolie cour intérieure, deux chambres sur cour assurent un calme absolu, une salle de bains avec toilettes, et une salle de douche attenante à la chambre parentale, avec toilettes.
Doté du charme de l'ancien, l’appartement conjugue le caractère classique (parquet, moulures, cheminée), un agencement fonctionnel, et le calme absolu.
La cohérence du plan fait de ce bien un lieu de vie en bon état et chaleureux, mais aussi un lieu d'exercice professionnel idéal.Une cave et un débarras de 5m² au septième étage avec ascenseur complètent cette offre.Professions libérales autorisées.
- Calme absolu grâce aux chambres sur cour.
- Immeuble gardienné offrant sécurité et tranquillité.
Paris 17e - PEREIRE / JULIETTE LAMBER - Appartemen
Les informations sur les risques auxquels ce bien est exposé sont disponibles sur le site Géorisques :
Réf : 2895WAGDAH - Date : 14/04/2026
LES ATOUTS
CARACTÉRISTIQUES
DIAGNOSTICS ENERGETIQUES
LOCALISATION
NOUS CONTACTER
DEMANDE D'INFORMATIONS
Demander plus d’informations à JUNOT WAGRAM PEREIRE.
















