Appartement Paris 17e - 5 chambres - 231m²
75017 - Paris 17e
DESCRIPTIF
PARIS 17EME PEREIRE/BAYEN EXCEPTIONNEL DUPLEX AVEC BALCON DE 6/7 PIECES AUX 5EME ET 6EME ETAGES AVEC PARKINGPOSSIBILITE CHAMBRE DE SERVICE AU MEME ETAGESitué à Paris 17ème, dans le secteur très recherché Pereire / Bayen, à proximité immédiate du marché des Ternes et des commerces de qualité, ce bien d’exception offre un cadre de vie rare et privilégié.
Installé aux 5ème et 6ème (et dernier) étages d’un superbe immeuble haussmannien de grand standing, parfaitement entretenu, ce magnifique duplex est seul sur le palier, garantissant calme, intimité et sécurité.Dès l’entrée, vous serez immédiatement séduit par les volumes généreux, la luminosité et le charme de l’ancien parfaitement préservé.
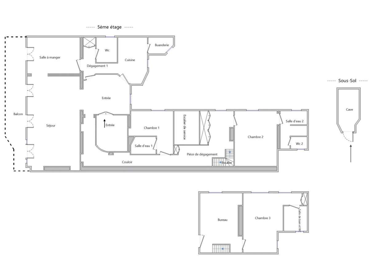
Le 5ème étage s’ouvre sur une vaste double réception de 44 m², idéale pour recevoir, prolongée par un large balcon exposé sud-est, sans vis-à-vis, offrant une très belle vue dégagée et un ensoleillement optimal tout au long de la journée.
Une élégante salle à manger indépendante complète cet espace de réception.La cuisine, entièrement aménagée et équipée, propose un espace dinatoire convivial avec coin repas, ainsi qu’une buanderie attenante, apportant un confort de vie au quotidien.L’espace nuit de ce niveau se compose d’une somptueuse suite parentale incluant un bureau, une grande chambre avec dressing et une salle de bains privative avec toilettes.
Une seconde chambre avec salle d’eau complète cet étage.Au 6ème et dernier étage, un espace indépendant propose un bureau, une chambre supplémentaire ainsi qu’une salle d’eau avec toilettes, idéal pour accueillir des invités, un adolescent ou créer un espace de travail parfaitement isolé.Une cave en sous-sol ainsi qu’un emplacement de parking viennent compléter ce bien.
Possibilité d’acquérir en sus une chambre de service située au même étage.Ce bien rare séduit par son large balcon, ses vues dégagées, ses prestations de qualité, son excellent état général et son emplacement prisé.
Un appartement de caractère alliant élégance, confort et fonctionnalité, au cœur d’un quartier vivant et recherché.
- Balcon privé avec vue dégagée et ensoleillé toute la journée.
- Immeuble haussmannien parfaitement entretenu, alliant charme et prestige.
PARIS 17EME PEREIRE/BAYEN EXCEPTIONNEL DUPLEX AVEC
Les informations sur les risques auxquels ce bien est exposé sont disponibles sur le site Géorisques :
Réf : 86853501 - Date : 14/04/2026
LES ATOUTS
CARACTÉRISTIQUES
DIAGNOSTICS ENERGETIQUES
LOCALISATION
NOUS CONTACTER
DEMANDE D'INFORMATIONS
Demander plus d’informations à PARIS NEUILLY IMMOBILIER PEREIRE.
















