Appartement Paris 16e - 2 chambres - 83m²
75016 - Paris 16e
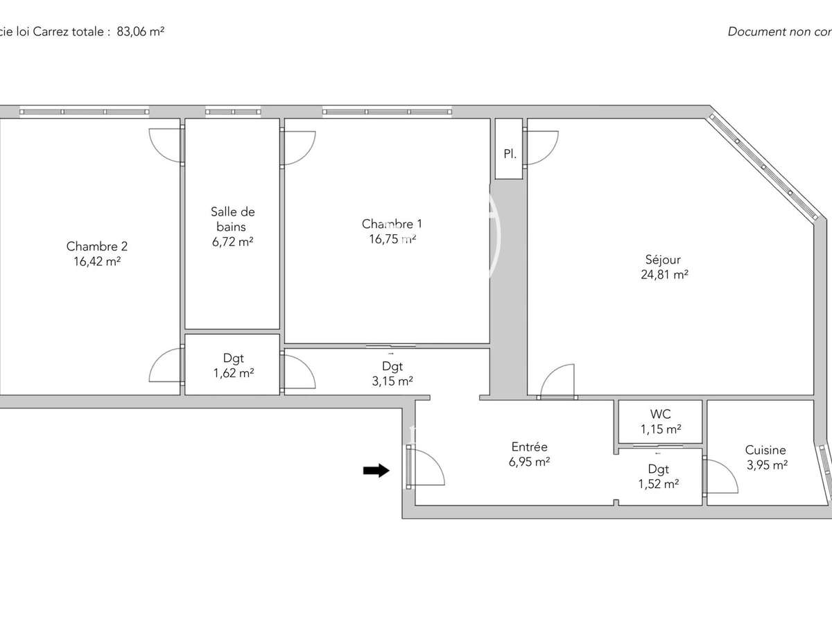
DESCRIPTIF
Entre les avenues d’Iéna et Marceau, au cœur d’une rue calme et recherchée, à proximité immédiate des commerces.Élégant appartement de 83,06m² loi Carrez situé au quatrième étage par ascenseur d’un remarquable immeuble d’angle en pierre de taille datant de 1890.Baigné de lumière, ce bien aux volumes harmonieux comporte une entrée, une vaste réception en angle réunissant salon et salle à manger, deux belles chambres, chacune avec accès à la salle de bains, une cuisine indépendante entièrement aménagée, des toilettes invités et de nombreux rangements.L’ensemble séduit par son excellent état, son charme et son plan parfaitement optimisé, sans perte d’espace.Une cave complète ce bien.Immeuble avec gardien et accès sécurisé.
- Emplacement privilégié au cœur du triangle d'or avec commerces à proximité.
- Immeuble historique en pierre de taille datant de 1890.
Paris 16e - TRIANGLE D'OR - Appartement à vendre -
Les informations sur les risques auxquels ce bien est exposé sont disponibles sur le site Géorisques :
Réf : 2336PASDRI - Date : 22/04/2026
LES ATOUTS
CARACTÉRISTIQUES
DIAGNOSTICS ENERGETIQUES
LOCALISATION
NOUS CONTACTER
DEMANDE D'INFORMATIONS
Demander plus d’informations à JUNOT PASSY- LA MUETTE.












