Appartement Paris 15e - 2 chambres - 82m²
75015 - Paris 15e
DESCRIPTIF
L’appartement est idéalement situé au cœur du quartier animé et commerçant de La Motte-Picquet – Rue du Commerce.
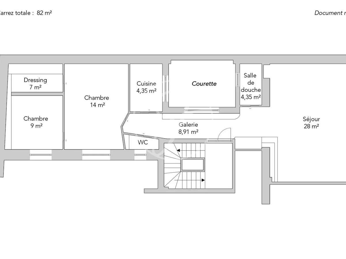
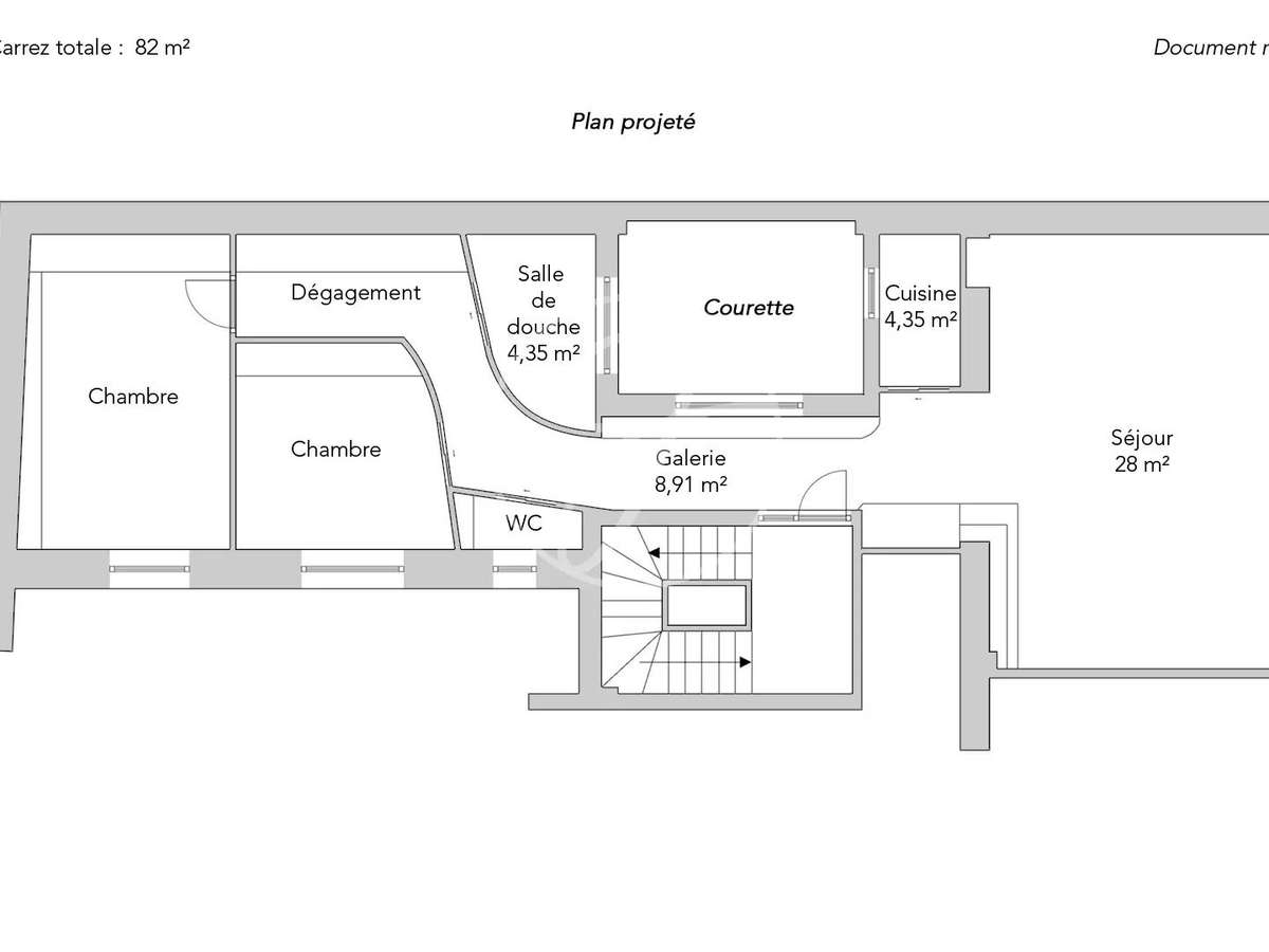
En retrait de l’agitation de l’avenue, il bénéficie d’un environnement calme tout en restant à proximité immédiate des commerces et des transports, notamment de la station de métro La Motte-Picquet–Grenelle.Cet appartement de réception, offrant de beaux volumes, se situe au quatrième étage avec ascenseur d’une copropriété très bien entretenue.D’une surface de 82m², lumineux, ensoleillé et traversant, il bénéficie d’une exposition plein sud sur le séjour.Son plan optimisé, sans aucune perte d’espace, comprend une galerie d’entrée, un séjour sans vis-à-vis, une cuisine indépendante, deux chambres au calme, une salle de douche avec fenêtre et des toilettes séparées avec fenêtre également.Une cave complète ce bien, ainsi qu’un local à vélos.EXCLUSIVITÉ.
- Emplacement privilégié : Quartier animé de La Motte-Picquet, proche des commerces.
- Lumineux et spacieux : Appartement traversant, exposition plein sud, beaux volumes.
Paris 15e – LA MOTTE PICQUET – Appartement à vendr
Les informations sur les risques auxquels ce bien est exposé sont disponibles sur le site Géorisques :
Réf : 3338BTLSLA - Date : 14/01/2026
LES ATOUTS
CARACTÉRISTIQUES
DIAGNOSTICS ENERGETIQUES
LOCALISATION
NOUS CONTACTER
DEMANDE D'INFORMATIONS
Demander plus d’informations à JUNOT BRETEUIL.





















