Appartement Paris 15e - 3 chambres - 109m²
75015 - Paris 15e
DESCRIPTIF
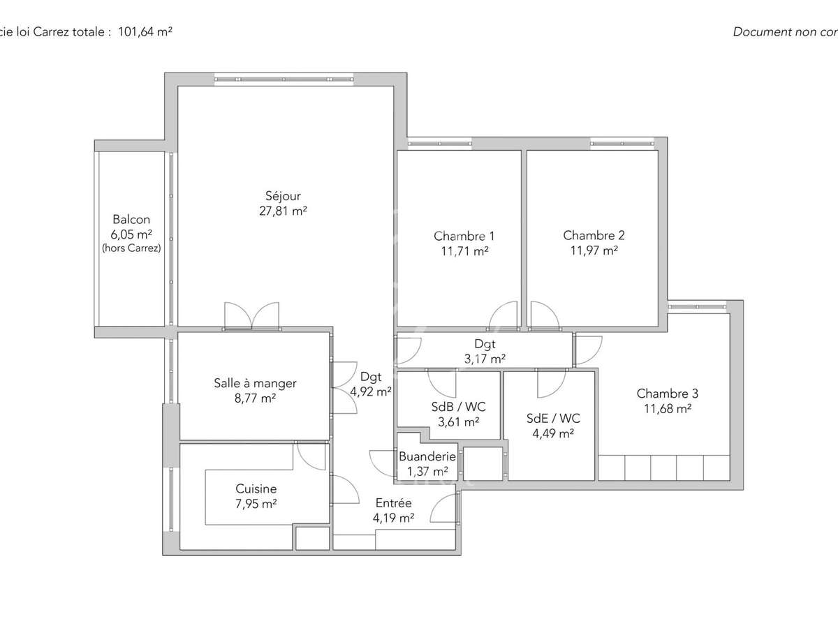
Situé rue Falguière, au quatrième étage par ascenseur d'un immeuble récent de 1974 bien entretenu, découvrez ce bel appartement familial de 101,64m² loi Carrez en parfait état.Doté d'un plan fonctionnel et d'une belle luminosité, ce bien familial comporte une entrée avec dressing, une cuisine entièrement équipée, une salle à manger et un salon lumineux qui ouvre de plain-pied sur une agréable terrasse avec vue verdoyante sur jardin.L’espace nuit offre quant à lui trois chambres aux volumes confortables, une première salle de douche avec ses toilettes, une salle de bains également avec ses toilettes, et une buanderie.Proposé avec une cave et un emplacement de parking en sous-sol, des atouts rares et recherchés dans le quartier, ce bien idéal pour une famille se situe à proximité des commerces, des transports, Gare Montparnasse, Métro Falguière et des écoles du 15e arrondissement.
Sectorisé collège Buffon.
Parking en supplément pour 30 000€.EXCLUSIVITÉ.
- Terrasse avec vue sur un jardin verdoyant pour des moments de détente.
- 3 chambres spacieuses offrant un espace familial confortable et pratique.
Paris 15e - MONTPARNASSE - Appartement à vendre -
Les informations sur les risques auxquels ce bien est exposé sont disponibles sur le site Géorisques :
Réf : 1956CHMSAR - Date : 19/02/2026
LES ATOUTS
CARACTÉRISTIQUES
DIAGNOSTICS ENERGETIQUES
LOCALISATION
NOUS CONTACTER
DEMANDE D'INFORMATIONS
Demander plus d’informations à JUNOT 6E.


























