Appartement Nantes - 3 chambres - 122m²
44000 - Nantes
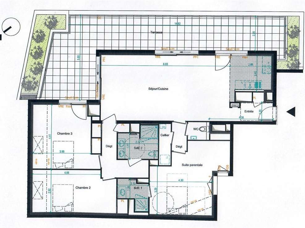
DESCRIPTIF
Sotheby’s Nantes vous propose ce magnifique appartement niché au dernier étage d’un immeuble de standing, offrant une vue imprenable sur l’Erdre et un cadre de vie exceptionnel.
Baigné de lumière grâce à son exposition sud-ouest, ce bien séduit par sa spacieuse terrasse de 46 m², idéale pour savourer des moments en extérieur et admirer les couchers de soleil.
L’intérieur, à la fois élégant et fonctionnel, se compose d’une belle pièce de vie lumineuse, s’ouvrant directement sur la terrasse.
Une suite parentale de 24m2 avec son dressing et sa salle d’eau privative, offre un confort absolu.
Deux chambres et une salle d’eau permettent d’accueillir famille et amis en toute sérénité.
Habitat connecté.
En sus, 2 parkings en sous-sol.
Situé dans un quartier recherché, cet appartement allie prestige, confort et tranquillité, tout en restant à proximité des commerces et des transports.
Frais de notaire réduits (2.5%).
Les informations sur les risques auxquels ce bien est exposé sont disponibles sur le site Géorisques : Découvrez nos annonces sur
Vue imprenable sur l'Erdre pour cet appartement T4 de 122m2 en dernier étage avec terrasse de 46m2
Les informations sur les risques auxquels ce bien est exposé sont disponibles sur le site Géorisques :
Réf : NA3-1553 - Date : 26/03/2025
LES ATOUTS
CARACTÉRISTIQUES
DIAGNOSTICS ENERGETIQUES
LOCALISATION
NOUS CONTACTER
NANTES SOTHEBY'S INTERNATIONAL REALTY
3, Place Paul Emilie Ladmirault
44000 NANTES
DEMANDE D'INFORMATIONS
Demander plus d’informations à NANTES SOTHEBY'S INTERNATIONAL REALTY.










