Appartement Aix-en-Provence - 3 chambres - 111m²
13080 - Aix-en-Provence
DESCRIPTIF
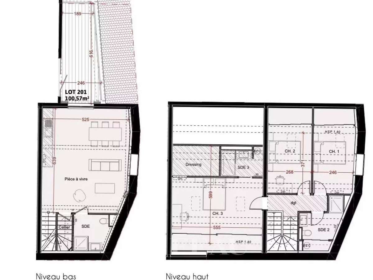
À sept minutes à pied du cours Mirabeau, dans une rue calme, ce duplex de 100,57m² Loi Carrez est une opportunité rare sur le marché aixois.
Situé aux deuxième et dernier étage d'un bâtiment historique entièrement réhabilité en seulement 7 appartements, il a été imaginé comme une maison sur le toit, avec sa terrasse privative de 13,4m².
L'architecture intérieure est résolument contemporaine et les façades faubourgeoises.
Les toitures caractéristiques d'Aix ont été soigneusement préservées.
Pierre naturelle, parquet, boiseries, carrelage et faïences de qualité composent un intérieur à la hauteur de l'adresse.
L'ascenseur et le parking couvert en rez-de-chaussée complètent les prestations, avec toutes les garanties et performances propres au neuf.Nombre de lots : 25
- Terrasse privative de 13,4 m² offrant un espace extérieur convivial.
- Design contemporain alliant modernité et charme patrimonial.
Aix en Provence - Appartement en coeur de ville
Les informations sur les risques auxquels ce bien est exposé sont disponibles sur le site Géorisques :
Réf : 86755058 - Date : 27/02/2026
LES ATOUTS
CARACTÉRISTIQUES
DIAGNOSTICS ENERGETIQUES
LOCALISATION
NOUS CONTACTER
DEMANDE D'INFORMATIONS
Demander plus d’informations à DANIEL FÉAU AIX & PAYS VAROIS.







