Apartment Paris 9e - 3 bedrooms - 176m²
75009 - Paris 9e
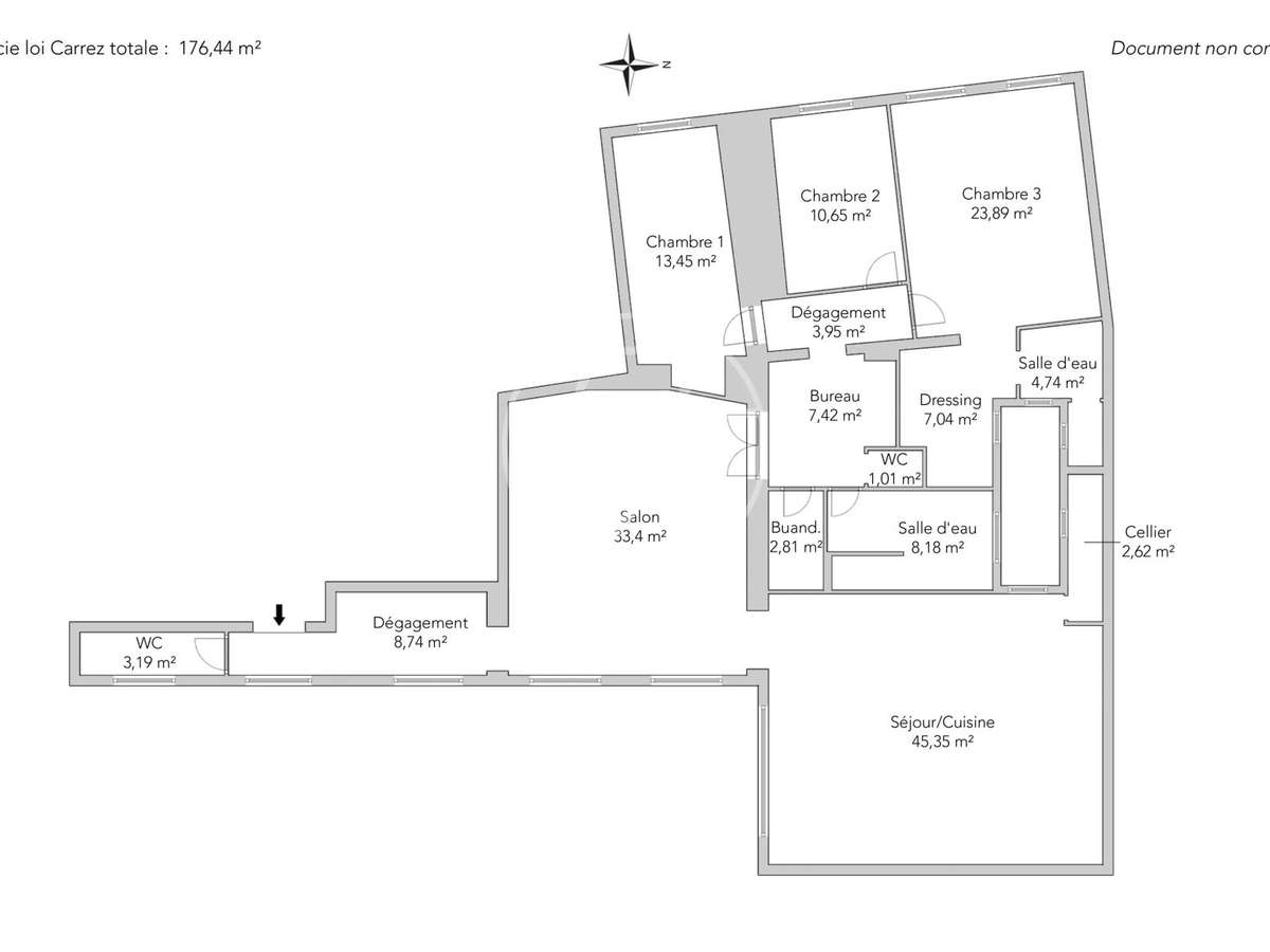
DESCRIPTION
Located in the heart of the 9th arrondissement, on the second floor with elevator of a Haussmannian building with a full-time concierge, this 176.44 sqm apartment has been completely renovated by an architect.
This family and reception apartment features high-end amenities while preserving the charm of the old: solid parquet flooring, detailed moldings, and decorative fireplaces.
With 3.20 m ceiling height, the rooms offer very pleasant volumes.
The triple exposure and crossing layout ensure very good brightness.
The 35sm living room opens onto a 27 sqm dining room, forming a reception space of over 60 sqm filled with light, as well as a sublime 23 sqm kitchen, fully fitted and equipped, designed for both cooking and entertaining.
Access to the bedrooms is through a circulation room converted into an office with a bench.
The main suite of 34sqm includes a dressing room, a study area, and a shower room.
The other two bedrooms of 11 and 14sqm each have their own shower room.
All shower rooms have been renovated with polished concrete.
Numerous storage spaces throughout the apartment, a laundry room, and two separate toilets complete the ensemble.
Air conditioning.
A cellar completes this property.
Concierge.
- High-end renovation preserving the charm of the old style
- Triple exposure ensuring brightness and spaciousness
- Ideally located close to amenities and transport.
Apartment - Paris 9th - Garnier Opera - 176.44 sqm - 3 bedrooms
Information on the risks to which this property is exposed is available on the Géorisques website :
Ref : 3022MONVIQ/3613STG - Date : 18/04/2026
FEATURES
DETAILS
ENERGY DIAGNOSIS
LOCATION
CONTACT US
INFORMATION REQUEST
Request more information from JUNOT SAINT GEORGES.































