Apartment Paris 17e - 4 bedrooms - 347m²
75017 - Paris 17e
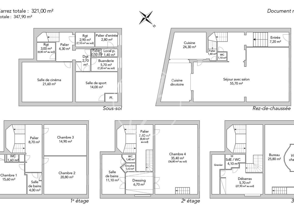
DESCRIPTION
Close to Place Pereire, transport, shops and prestigious private schools, we offer you a magnificent private mansion built in 1880.
Spread over four floors, this 321sqm house features a triple reception room with high ceilings on the first floor, a bright dining kitchen under a retractable glass roof, and a guest toilet.
The second floor features three spacious bedrooms, a bathroom and separate toilet.
The second floor features an artist's studio-style master bedroom with a large glass roof and high ceilings, a vast mezzanine study, a bathroom, a large dressing room and separate toilet.
A separate staircase leads to the attic, which can be converted into a fifth independent bedroom, complete with shower room and toilet.
The basement offers a cinema room, gym, laundry room and cellar.
RARE.
- Prime location near Place Pereire and private schools.
- Quality renovation preserving heritage elements.
- Spacious living areas including a cinema room and gym.
Apartment - Paris 17th - Monceau - 321.3 sqm - 4 bedrooms
Information on the risks to which this property is exposed is available on the Géorisques website :
Ref : A2720WAGBOU - Date : 28/11/2025
FEATURES
DETAILS
ENERGY DIAGNOSIS
LOCATION
CONTACT US
INFORMATION REQUEST
Request more information from JUNOT WAGRAM PEREIRE.





















