Apartment Paris 17e - 3 bedrooms - 121m²
75017 - Paris 17e
DESCRIPTION
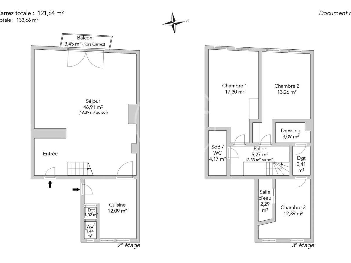
In the heart of a beautiful historic townhouse, this duplex apartment of 121.64sqm loi Carrez, located on the second and third floors by staircase, features a 3.45sqm balcony.
It has a loft-like, atypical feel with unobstructed views and trees.
Bright and airy, the first level comprises an entrance hall leading to a spacious double living-dining room with unobstructed views over the large west-facing balcony, a separate kitchen and separate toilet.
Upstairs, the sleeping area comprises three bedrooms, two shower rooms and a separate toilet.
A cellar completes this property.
- Historic mansion : preserved charm and elegance.
- 3.45 m² balcony : west-facing outdoor space.
- 3 bright bedrooms : comfort and space for well-being.
Apartment - Paris 17th - Monceau - 121.64 sqm - 3 bedrooms
Information on the risks to which this property is exposed is available on the Géorisques website :
Ref : 2743MONRAS - Date : 28/11/2025
FEATURES
DETAILS
ENERGY DIAGNOSIS
LOCATION
CONTACT US
INFORMATION REQUEST
Request more information from JUNOT MONCEAU.






















