Apartment Neuilly-sur-Seine - 3 bedrooms
92200 - Neuilly-sur-Seine
DESCRIPTION
NEUILLY SUR SEINE / SECTORISATION PASTEUR.
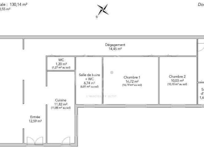
Located between Inkerman and Parmentier, on the 3rd floor with lift of a small, well-built condominium, this very attractive 130.55 m² family flat has been completely renovated by an architect and comprises a large living room, 3 bedrooms including a master suite with shower room, a bathroom with toilet, a fitted and equipped kitchen/diner, an entrance hall with study area, a storage room and a second toilet.
A cellar and a parking space in the first basement complete this offer.
This is a rare property in the Pasteur sector.
Features: Caretaker, Parking, Fibre optics, Double glazing.
Property subject to co-ownership legal status.
No.
of lots: 42.
Annual co-ownership charges (average annual amount per share of the vendor's provisional budget): 6,396 .
No legal proceedings in progress.
Contact your AXO - L'immobilier Actif agent on , Carlo SCHIRONE Négociateur Immobilier Salarié.
More information on (ref.
85024139...).
Price inclusive of tax and fees payable by the vendor inclusive of tax.
Information on the risks to which this property is exposed is available on the Géorisques website: https://www.georisques.gouv.fr/
- Quality renovation: modern design by architect enhances the space.
- Prime location: Pasteur area, close to shops and transport.
- Optimal comfort: elevator, caretaker, and private parking.
Flat for sale
Ref : 85002121705 - Date : 30/10/2025
FEATURES
DETAILS
ENERGY DIAGNOSIS
LOCATION
CONTACT US
INFORMATION REQUEST
Request more information from AXO L'immobilier Actif.













