Apartment Asnières-sur-Seine - 3 bedrooms - 130m²
92600 - Asnières-sur-Seine
DESCRIPTION
Close to the town hall and all amenities.
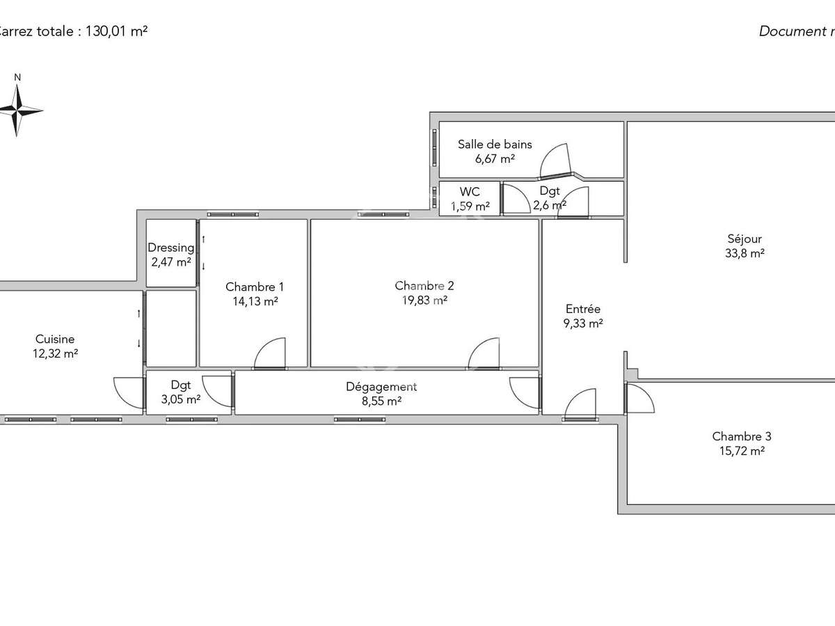
In a quiet street, in the heart of a beautiful 1930 building, this elegant 130.01sqm family apartment, located on the second floor by elevator, has retained all the charm of the past.
Bright and airy, it comprises an entrance hall, a vast 33.80sqm living room with two large windows, three large bedrooms, a fitted kitchen-diner, a bathroom, separate toilet and a large dressing room with the possibility of a second shower room.
A cellar completes the property.
This property stands out for its location, cachet and spaciousness.
EXCLUSIVE.
Isabelle RIBUOT - EI - Sales agent - RSAC no.: 535105373 - Nanterre
- Prime location: close to the town hall and shops
- Generous spaces: bright living room of 33.80 m²
- Old-world charm: beautiful building from the 1930s
Apartment - Asnières-sur-Seine - 130.01 sqm - 3 bedrooms
Information on the risks to which this property is exposed is available on the Géorisques website :
Ref : 2314NEURIB - Date : 18/04/2026
FEATURES
DETAILS
ENERGY DIAGNOSIS
LOCATION
CONTACT US
INFORMATION REQUEST
Request more information from JUNOT NEUILLY.















