Maison Suresnes - 4 chambres - 296m²
92150 - Suresnes
DESCRIPTIF
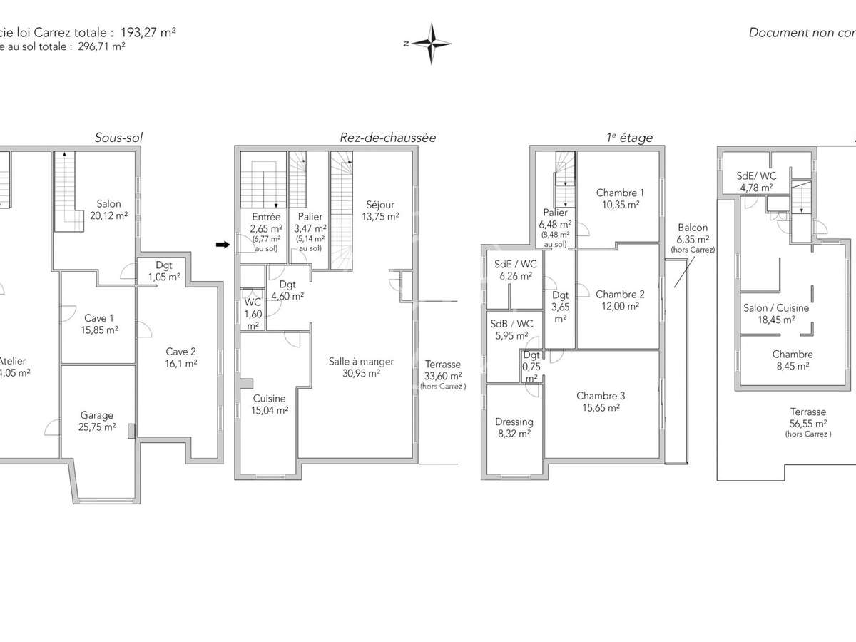
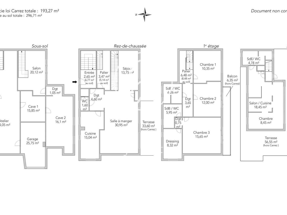
Dans une rue calme et résidentielle, nichée dans un écrin de verdure et à proximité immédiate de la terrasse du Fecheray, spacieuse maison familiale de 193m² habitable (296m² au total) sur une parcelle arborée orientée sud de 297m².
Cette demeure bénéficie d'une vue panoramique sur Paris et l'ouest parisien.
Elle se compose au rez-de-chaussée, d'une entrée, de toilettes invitées, d'un espace de vie de 49m² ouvrant directement sur une terrasse de 36m² et un jardin plein sud, et d'une cuisine équipée (possibilité de l'ouvrir sur l'espace de vie).Au 1er étage, un palier dessert trois chambres (dont une suite parentale avec son dressing, sa salle de bains et toilettes) et une salle de douche avec toilettes.
Au 2e étage, un studio de 32m² (accès indépendant possible) composé d'un séjour avec kitchenette, d'une chambre, d'une salle de douche avec toilettes, le tout donnant sur une terrasse vue plein ciel de 56m².Un sous-sol de 100m² (partiellement aménagé avec salon et bureau) et un garage complètent le bien.Travaux à prévoir.Proximité gare du Mont Valérien (6mn), du T2, des commerces et des écoles..Ce bien se distingue par sa localisation, son environnement bucolique, ses espaces, ses vues dégagées et son potentiel.01 87 22....
EXCLUSIVITÉ
- Vue panoramique sur Paris depuis la maison.
- Jardin plein sud pour profiter du soleil.
Suresnes - FECHERAY - Maison de 193 m² - 4 chambre
Les informations sur les risques auxquels ce bien est exposé sont disponibles sur le site Géorisques :
Réf : 2289NEURIB - Date : 18/04/2026
LES ATOUTS
CARACTÉRISTIQUES
DIAGNOSTICS ENERGETIQUES
LOCALISATION
NOUS CONTACTER
DEMANDE D'INFORMATIONS
Demander plus d’informations à JUNOT NEUILLY.

























