Maison Paris 6e - 5 chambres - 183m²
75006 - Paris 6e
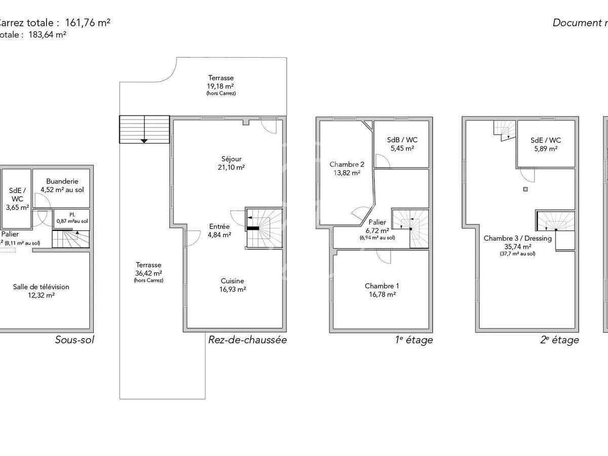
DESCRIPTIF
Nichée au cœur d’un îlot confidentiel, à l’abri des regards, cette maison rare de 161,76m² loi Carrez et 183,64m² au sol offre un cadre de vie privilégié qui conjugue avec élégance esprit de campagne et confort contemporain.Dès l’entrée, l’espace de réception séduit par ses volumes et sa convivialité.
Il accueille un salon et une cuisine ouverte parfaitement intégrée, prolongés de plain-pied par une superbe terrasse arborée, véritable écrin de verdure baigné de soleil, idéal pour recevoir ou profiter de moments en famille.Le premier étage dessert deux chambres agréables ainsi qu’une salle de bains avec toilettes.Le second étage, entièrement dédié à l’espace parental, propose une spacieuse chambre sublimée par une verrière zénithale apportant une lumière douce et naturelle, un dressing, une salle de douche avec toilettes ainsi qu’un espace bureau.En cour anglaise, le sous-sol entièrement aménagé complète harmonieusement l’ensemble avec un salon télévision, un bureau, une salle de douche avec toilettes et une buanderie.En excellent état, cette maison aux prestations soignées bénéficie d’un environnement particulièrement recherché, à proximité immédiate des établissements scolaires réputés.Un bien rare qui allie intimité, verdure et qualité de vie.EXCLUSIVITÉ.
- Terrasse arborée - Idéale pour recevoir ou se détendre.
- Espace parental - Chambre spacieuse et lumineuse avec dressing.
Paris 6e - NOTRE-DAME DES CHAMPS - Maison à vendre
Les informations sur les risques auxquels ce bien est exposé sont disponibles sur le site Géorisques :
Réf : M2007CHMHEN - Date : 18/04/2026
LES ATOUTS
CARACTÉRISTIQUES
DIAGNOSTICS ENERGETIQUES
LOCALISATION
NOUS CONTACTER
DEMANDE D'INFORMATIONS
Demander plus d’informations à JUNOT 6E.



















