Maison Paris 16e - 3 chambres - 174m²
Ce bien d'exception n'est plus disponible sur BellesPierres.com
Consultez nos autres recherches proches
Maison Paris 16e - 3 chambres - 174m²
Ce bien d'exception n'est plus disponible sur BellesPierres.com
Consultez nos autres recherches proches
Maison Paris 16e - 3 chambres - 174m²
75016 - Paris 16e
DESCRIPTIF
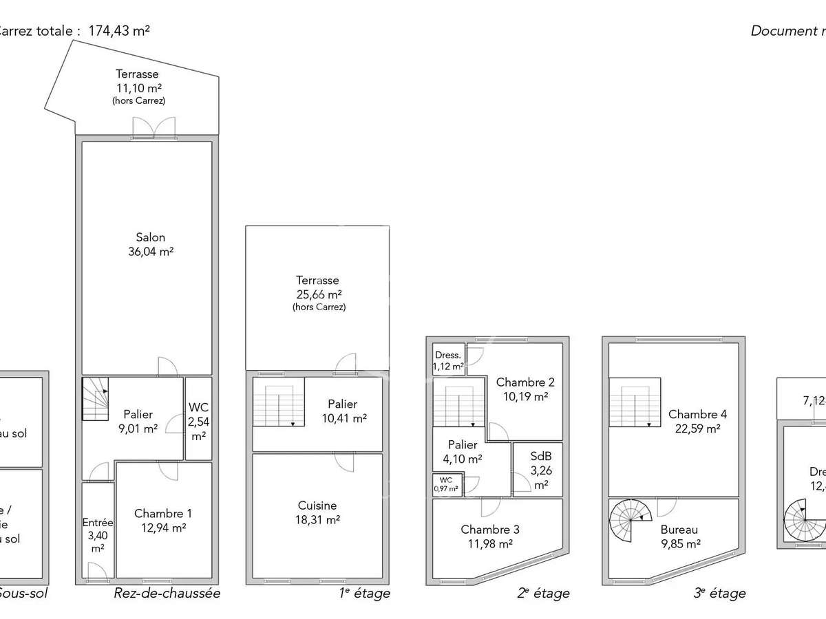
À la lisière du 16e, quartier Victor Hugo/Thiers, Boulogne-Billancourt.À proximité des commerces, écoles et transports, cette maison sur quatre niveaux bénéficie d'un cadre de vie unique.
Cette agréable maison familiale de 174,43m² loi Carrez offre trois/quatre chambres et de multiples espaces extérieurs.
Elle comporte, au niveau principal, un espace réception ouvert sur un patio préservé des regards ainsi que d'une family room ou chambre et des toilettes séparées.Au premier niveau, une agréable cuisine dînatoire donne sur une terrasse à l'abri des regards.
Au deuxième niveau, deux chambres ainsi qu'une salle de bains et des toilettes séparées.Enfin, l'étage supérieur comprend une vaste suite parentale aux spacieux volumes et aux vues arborées, un bureau indépendant attenant et, en mezzanine, donnant sur un large balcon à la vue dégagée, un grand dressing et une salle de bains avec toilettes.
Au sous-sol, un bel espace indépendant: cave et buanderie.
EXCLUSIVITÉ
- Cadre de vie unique avec cadre verdoyant et proche des commodités.
- Espaces extérieurs tels qu'un patio et une terrasse intime.
À la lisière du 16e - PORTE DE SAINT-CLOUD - Maiso
Les informations sur les risques auxquels ce bien est exposé sont disponibles sur le site Géorisques :
Réf : 2778MONRAS16 - Date : 28/11/2025
CARACTÉRISTIQUES
DIAGNOSTICS ENERGETIQUES
NOUS CONTACTER
DEMANDE D'INFORMATIONS
Demander plus d’informations à JUNOT PASSY- LA MUETTE.


