Maison Paris 15e - 3 chambres - 150m²
75015 - Paris 15e
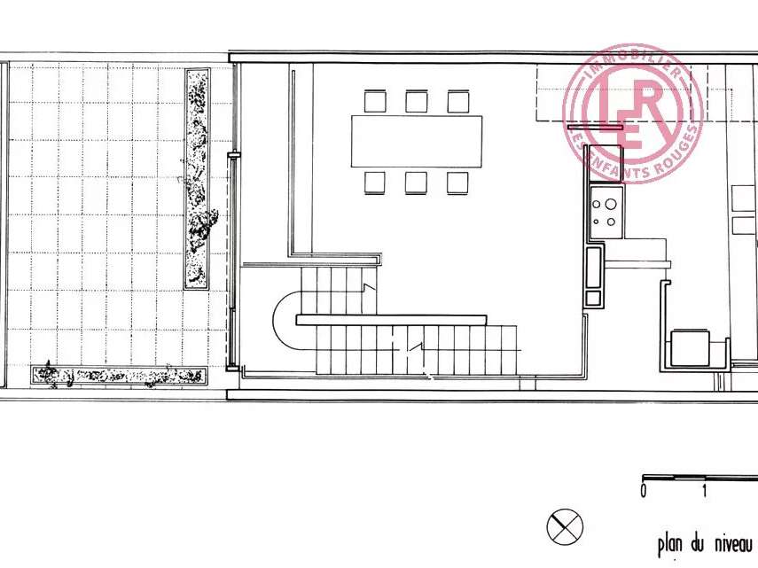
DESCRIPTIF
UNIQUE-Maison de ville contemporaine d’architectes, située au cœur du 15ᵉ arrondissement, cette réalisation de 1991 signée Antonio Lazo et Édouard Mure s’impose comme une référence de l’architecture contemporaine, inscrite dans l’héritage de la modernité puriste inspirée par LeCorbusier.
La maison se déploie selon une chorégraphie verticale autour d’un escalier filant sur toute la hauteur du volume, cadré par une lame de béton continue ; l’ascension compose un enchaînement de séquences révélant, à chaque niveau, des relations subtiles entre volumes, lumière et perspectives.
Les espaces de réception s’organisent en deux élégantes pièces de vie : un salon avec cheminée, et une salle à manger dans le prolongement naturel de la cuisine, ouvertes sur plusieurs terrasses, dont un rooftop.
La partie nuit accueille trois chambres, dont une suite avec terrasse, ainsi que deux salles de bains.
Dessinée dans ses moindres détails, meublée sur mesure et sublimée par des matériaux sobres, cette maison offre une élégance intemporelle.
Située à 100 mètres de la maison de Georges Brassens, elle s’adresse à des amateurs éclairés en quête d’un lieu de vie singulier et confidentiel à Paris.« Les informations sur les risques auxquels ce bien est exposé sont disponibles sur le site Géorisques : »Agent commercial immatriculé au Registre spécial des agents commerciaux du greffe du tribunal de commerce de PARIS, sous le numéro RSAC 907 899 629
- Design contemporain inspiré de Le Corbusier et signé par des architectes réputés.
- Espaces extérieurs avec plusieurs terrasses dont un rooftop offrant des vues dégagées.
Paris 15ème - Convention - parc Georges Brassens -
Les informations sur les risques auxquels ce bien est exposé sont disponibles sur le site Géorisques :
Réf : 86504272 - Date : 30/04/2026
LES ATOUTS
CARACTÉRISTIQUES
DIAGNOSTICS ENERGETIQUES
LOCALISATION
NOUS CONTACTER
DEMANDE D'INFORMATIONS
Demander plus d’informations à L'AGENCE DES ENFANTS ROUGES CHERCHE-MIDI.

























