Maison Larmor-Baden
56870 - Larmor-Baden
DESCRIPTIF
Orhant Immobilier vous présente " Garance ", une maison d'exception de 126m² habitables, aux prestations haut de gamme, construite en 2024 sur un terrain de 350m², vous en serez les premiers habitants.
Idéalement située au cœur du village portuaire de Larmor-Baden, à seulement 400m de la mer,et moins de 300 m des commerces, épicerie, café-tabac-presse, restaurants, cette demeure profite d'un environnement privilégié dans le cadre exceptionnel du Golfe du Morbihan.
Un cadre de vie unique : Située au cœur d'un îlot résidentiel de seulement six maisons, cette propriété jouit d'un quartier recherché, arboré et calme.
Une courée urbaine privative dessert chacune des six maisons depuis la place du Prato.
Vannes est à 14 km, avec sa gare TGV, ses commerces, ses universités, Quiberon à 44 km, l'école de voile à 700 m, la Plage de la Fontaine à 500 m, Port-Blanc et l'embarcadère pour l'Île aux Moines à 5 km.
Une construction contemporaine et lumineuse et une architecture soignée conforme à la norme RT2012, cette maison moderne et confortable offre de beaux volumes et un jardin clos paysagé avec un cabanon.
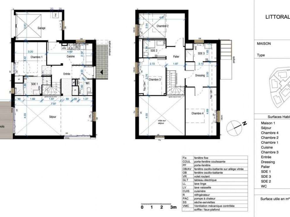
Au rez-de-chaussée, une entrée de 8m² avec placard et wc suspendu distribue l'ensemble de la maison, le beau salon-séjour déplafonné, exposé sud-ouest, 32m² environ, la cuisine indépendante, 10m², à aménager et une suite parentale avec salle d'eau attenante.
Et l'escalier, qui donne accès à l'étage à une 2ème suite parentale de près de 25 m² avec dressing et salle d'eau, 2 autres chambres lumineuses, 9 et 12 m² environ, et une salle d'eau avec wc.
A l'extérieur, une terrasse bois exposée sud, un jardin clos et arboré, le garage pour les vélos, et les kayaks ou la voiture et un emplacement de stationnement extérieur.
Caractéristiques techniques et prestations : RT2012, chauffage au sol au rdc et par radiateurs à l'étage, et production d'eau chaude par pompe à chaleur air/eau, menuiseries extérieures en aluminium laqué avec volets roulants électriques, parquet contrecollé dans les chambres, carrelage grès cérame grand format dans les pièces à vivre, WC suspendus, VMC simple flux Hygroréglable type B, pré-équipement pour solution domotique.
Ses atouts
Maison neuve (2024)
Situation exceptionnelle, non loin de l'île de Berder
4 chambres, 3 salles d'eau, 2 WC
126m² habitables, belles prestations
Performances énergétiques : DPE A / GES A
Date de réalisation du DPE : 18/02/2025
Consommation d'énergie primaire : 46 kWh/m²/an
Consommation d'énergie finale : 20 kWh/m²/an
Estimation des dépenses annuelles d'énergie : entre 520 € et 750 € (années 2021-2023, abonnements compris)
Les informations sur les risques auxquels ce bien est exposé sont disponibles sur le site Géorisques : https://www.georisques.gouv.fr
Nous serons ravis de vous accompagner pour une visite sur place.
N'attendez plus.
Agences de France - SIREN : 899413603 - Titulaire de la carte T : 29012021000000009 non habilité à percevoir des fonds
- Maison neuve, construite en 2024, moderne et lumineuse.
- Quartier recherché, calme et arboré, proche de la mer.
Vente maison
Réf : getkey_6045 - Date : 18/10/2025
LES ATOUTS
CARACTÉRISTIQUES
DIAGNOSTICS ENERGETIQUES
LOCALISATION
NOUS CONTACTER
DEMANDE D'INFORMATIONS
Demander plus d’informations à Agences de France.























