Maison Bordeaux - 3 chambres - 195m²
33000 - Bordeaux
DESCRIPTIF
BORDEAUX - Entre SAINT GENÈS et NANSOUTY.
L'agence GRANGE-DELMAS vous propose à la vente cette belle maison en pierre entièrement rénovée par un architecte, dans un quartier recherché pour ses écoles et ses commerces de proximité.
La superbe pièce de vie traversante baignée de lumière avec parquet, cheminée avec insert et superbe cuisine ouverte aménagée donnant sur une agréable terrasse par une large baie vitrée se situe à l'étage.
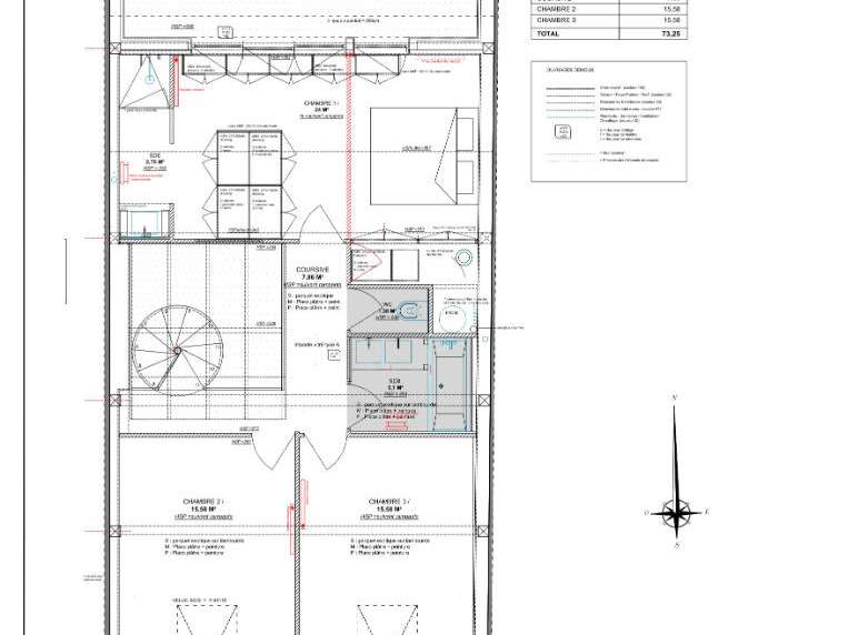
Un escalier mène à l'espace nuit avec 3 grandes chambres, dont 1 grande chambre parentale, 1 salle de bain, 1 salle d'eau et wc séparés.
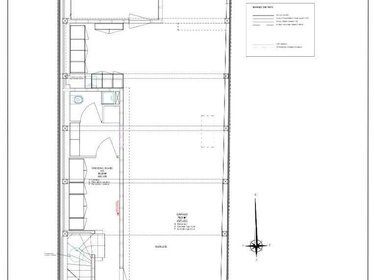
Le rez-de-chaussée est composé d'un grand garage pouvant accueillir 3 voitures, une pièce de 20m² à aménager selon vos besoins, un dressing, une buanderie, des wc.
Maison traversante à l'emplacement idéal proche des établissements scolaires Brémontier, St Genès, des commerces de proximité et des transports lignes 5-23.
Prix : 895.000 EUR
- Rénovation de qualité par un architecte, alliant confort et esthétisme.
- Terrasse ensoleillée idéale pour des moments de détente en extérieur.
Maison en pierre avec terrasse et grand RDC -garage 3 voitures- NANSOUTY
Les informations sur les risques auxquels ce bien est exposé sont disponibles sur le site Géorisques :
Réf : 15127_57935484 - Date : 06/03/2026
LES ATOUTS
CARACTÉRISTIQUES
DIAGNOSTICS ENERGETIQUES
LOCALISATION
NOUS CONTACTER
DEMANDE D'INFORMATIONS
Demander plus d’informations à GRANGE DELMAS IMMOBILIER.
















