Appartement Suresnes - 88m²
92150 - Suresnes
DESCRIPTIF
Sur les bords de la Seine, le programme neuf "Métamorphose" propose un appartement de 88m2 avec un balcon de 21m2.L'appartement comprend, au 3e étage, une entrée, une grande salle de séjour ouverte sur la cuisine, des toilettes et un balcon filant sur le séjour et la cuisine.
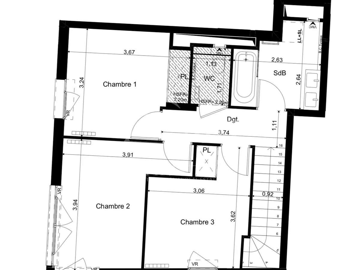
Au 4eétage, il comprend 3 chambres, une salle de bain, et des toilettes.La date de livraison de l'appartement est prévue pour le 1er trimestre 2026.FRAIS DE NOTAIRES OFFERTS + REDUCTION EXCEPTIONNELLE SUR LE PRIX DE VENTE
- Grand balcon de 21m2 pour des moments de détente en plein air.
- Rénovation de qualité avec des matériaux modernes et stylés.
A vendre - Programme Neuf - Duplex 3 chambres - Su
Les informations sur les risques auxquels ce bien est exposé sont disponibles sur le site Géorisques :
Réf : MZIPARG077 - Date : 28/11/2025
LES ATOUTS
CARACTÉRISTIQUES
DIAGNOSTICS ENERGETIQUES
LOCALISATION
NOUS CONTACTER
DEMANDE D'INFORMATIONS
Demander plus d’informations à MICHAËL ZINGRAF REAL ESTATE PARIS RIVE GAUCHE.












