Appartement Saint-Raphaël - 2 chambres - 75m²
83530 - Saint-Raphaël
DESCRIPTIF
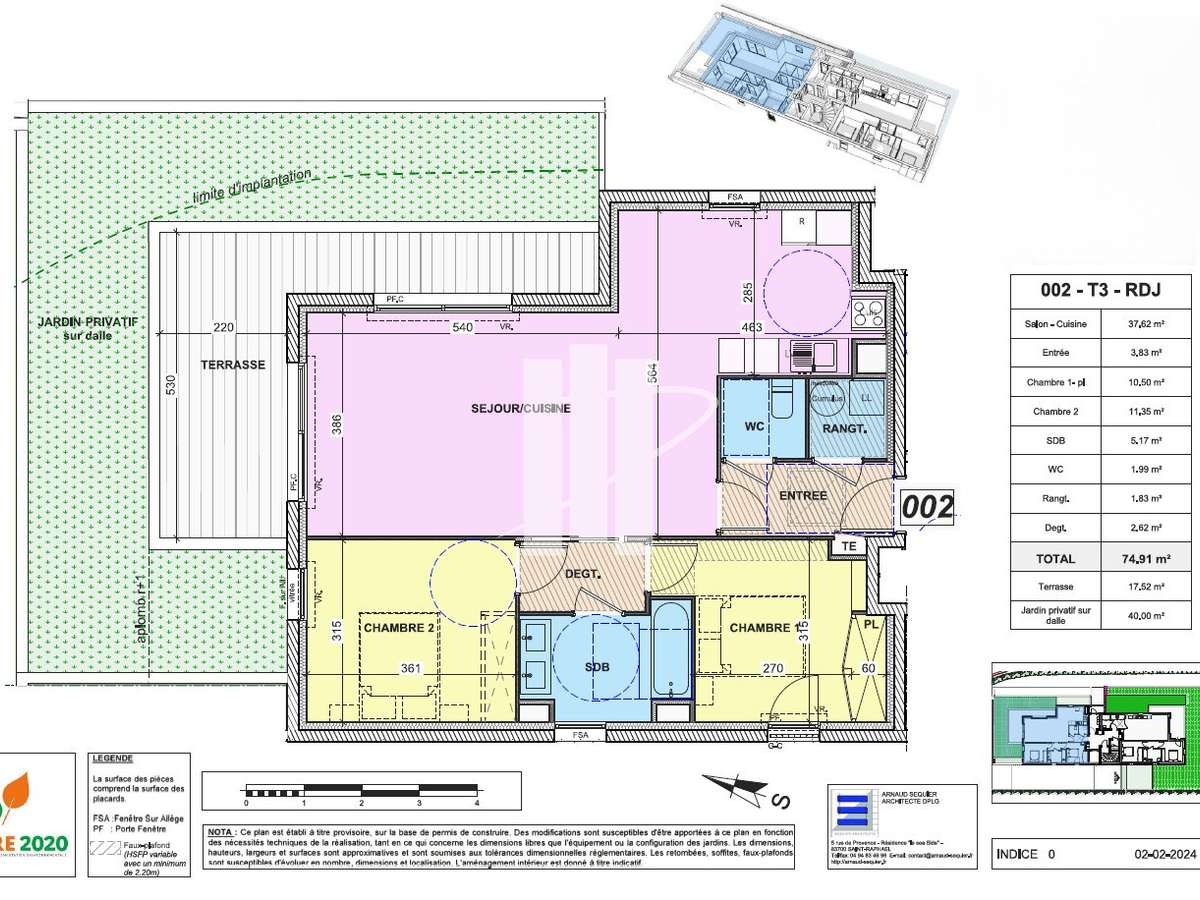
Votre agence Corniche d'Or immobilier vous propose à la vente au centre de Boulouris, véritable tout à pied (plages 400m, commerces et gare 100m), dans une résidence intimiste de seulement 5 lots d'habitations cet appartement 3 pièces de 75 m² en rez-de-jardin bénéficiant d'un séjour de 37 m², d'une terrasse de 17 m² prolongée par un jardin de 40 m².
La résidence est dotée d'une architecture moderne et l'appartement bénéficie de beaux volumes, de prestatiions haut de gamme pour votre confort et des dernières normes de construction RE2020.
Garages disponibles en supplément SIMPLE 27.0000 € et DOUBLE 50.000 €.
- Proximité immédiate des plages, commerces et gare.
- Espaces extérieurs : terrasse de 17 m² et jardin de 40 m².
REZ-DE-JARDIN - TERRASE 17 M² - JARDIN 40 M²
Les informations sur les risques auxquels ce bien est exposé sont disponibles sur le site Géorisques :
Réf : 33796_62 - Date : 05/03/2026
LES ATOUTS
CARACTÉRISTIQUES
DIAGNOSTICS ENERGETIQUES
LOCALISATION
NOUS CONTACTER
DEMANDE D'INFORMATIONS
Demander plus d’informations à Côté demeure.






