Appartement Paris 9e - 1 chambre - 33m²
75009 - Paris 9e
DESCRIPTIF
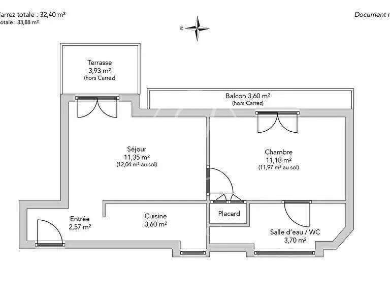
À deux pas de la très prisée avenue Trudaine, au sein d'une rue calme, superbe appartement de 32,40m² loi Carrez et 33,88m² au sol, au septième et avant-dernier étage par ascenseur d'un immeuble année 30 bien entretenu.
Son plan compact comprend une entrée avec rangements, un séjour exposé est ouvrant sur une belle terrasse et bénéficiant d'une vue dégagée sur le Sacré-Coeur, une cuisine semi-ouverte aménagée et équipée, une chambre avec un balcon, une salle de douche avec toilettes et son espace buanderie.
Une cave complète ce bien.
Cet appartement saura séduire par son plan sans perte de place, sa vue dégagée et son fort ensoleillement.
Configuration et situation exceptionnelles.
Gardienne à demeure.EXCLUSIVITÉ
- Vue dégagée sur le Sacré-Coeur, un atout inestimable pour cet appartement.
- Terrasse privative ensoleillée, idéale pour des moments de détente.
Paris 9e - SQUARE D'ANVERS / RUE TURGOT - Appartem
Les informations sur les risques auxquels ce bien est exposé sont disponibles sur le site Géorisques :
Réf : 3524MARGON - Date : 18/04/2026
LES ATOUTS
CARACTÉRISTIQUES
DIAGNOSTICS ENERGETIQUES
LOCALISATION
NOUS CONTACTER
DEMANDE D'INFORMATIONS
Demander plus d’informations à JUNOT MARTYRS.















