Appartement Paris 8e - 5 chambres - 247m²
75008 - Paris 8e
DESCRIPTIF
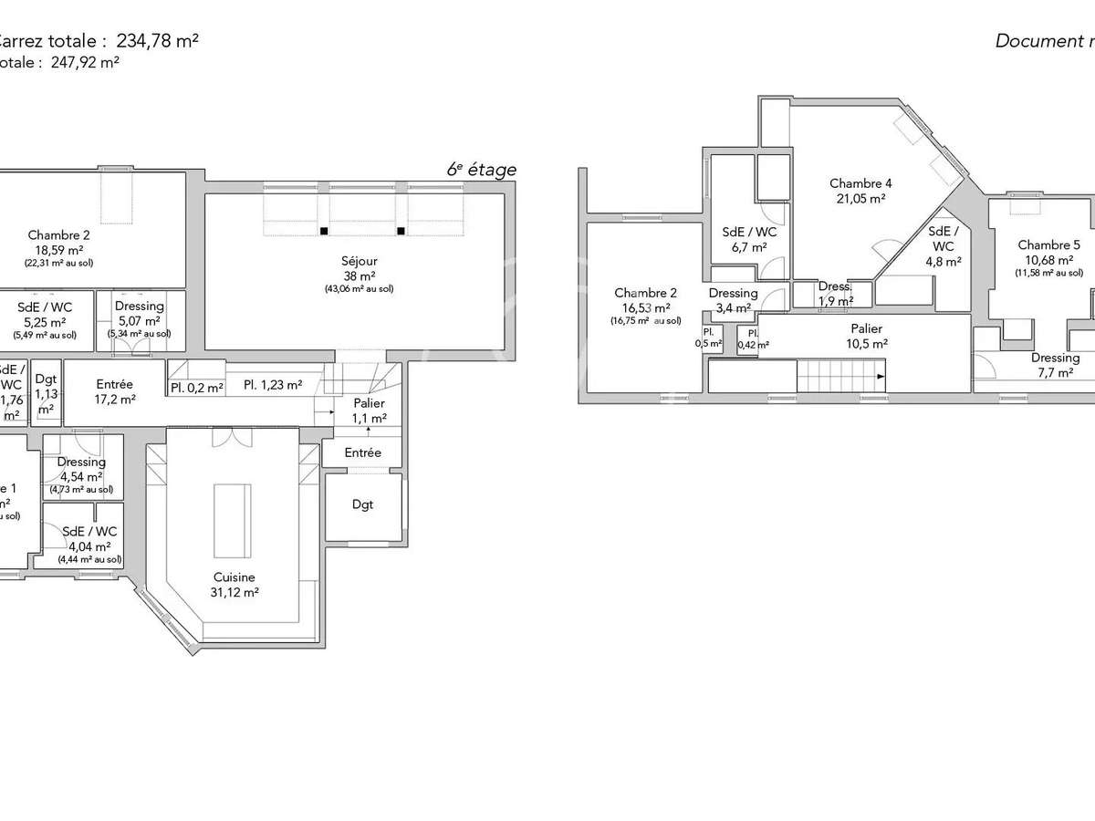
Idéalement situé au cœur du Triangle d’Or, dans un immeuble en pierre de taille parfaitement entretenu et sécurisé par la présence d’un gardien, ce duplex de 234,78m² Carrez occupe le cinquième et dernier étage.Récemment rénové avec des prestations haut de gamme, l’appartement se distingue par son format familial, sa luminosité et ses vues dégagées.Il s’ouvre sur une élégante entrée menant à une vaste réception baignée de lumière et à une grande cuisine dinatoire entièrement équipée.
Le premier niveau propose deux suites, chacune bénéficiant de sa salle de bains, de son dressing ainsi que d’un toilette invités.À l’étage supérieur, trois autres suites complètent ce plan familial idéal, également dotées de dressings et de salles de bains privatives avec toilettes.Appartement rare par sa situation et son agencement, il est proposé intégralement meublé, climatisé dans un état impeccable.Une cave vient en annexe.Un bien d’exception, alliant élégance parisienne, confort contemporain et adresse prestigieuse.
- Emplacement exceptionnel dans le Triangle d’Or.
- 5 suites lumineuses avec salles de bains privatives.
Paris 8e – GEORGES V – Duplex à vendre – 7 pièces
Les informations sur les risques auxquels ce bien est exposé sont disponibles sur le site Géorisques :
Réf : 1859VHUCOH - Date : 18/04/2026
LES ATOUTS
CARACTÉRISTIQUES
DIAGNOSTICS ENERGETIQUES
LOCALISATION
NOUS CONTACTER
DEMANDE D'INFORMATIONS
Demander plus d’informations à JUNOT VICTOR HUGO.


























