Appartement Paris 8e - 4 chambres - 171m²
75008 - Paris 8e
DESCRIPTIF
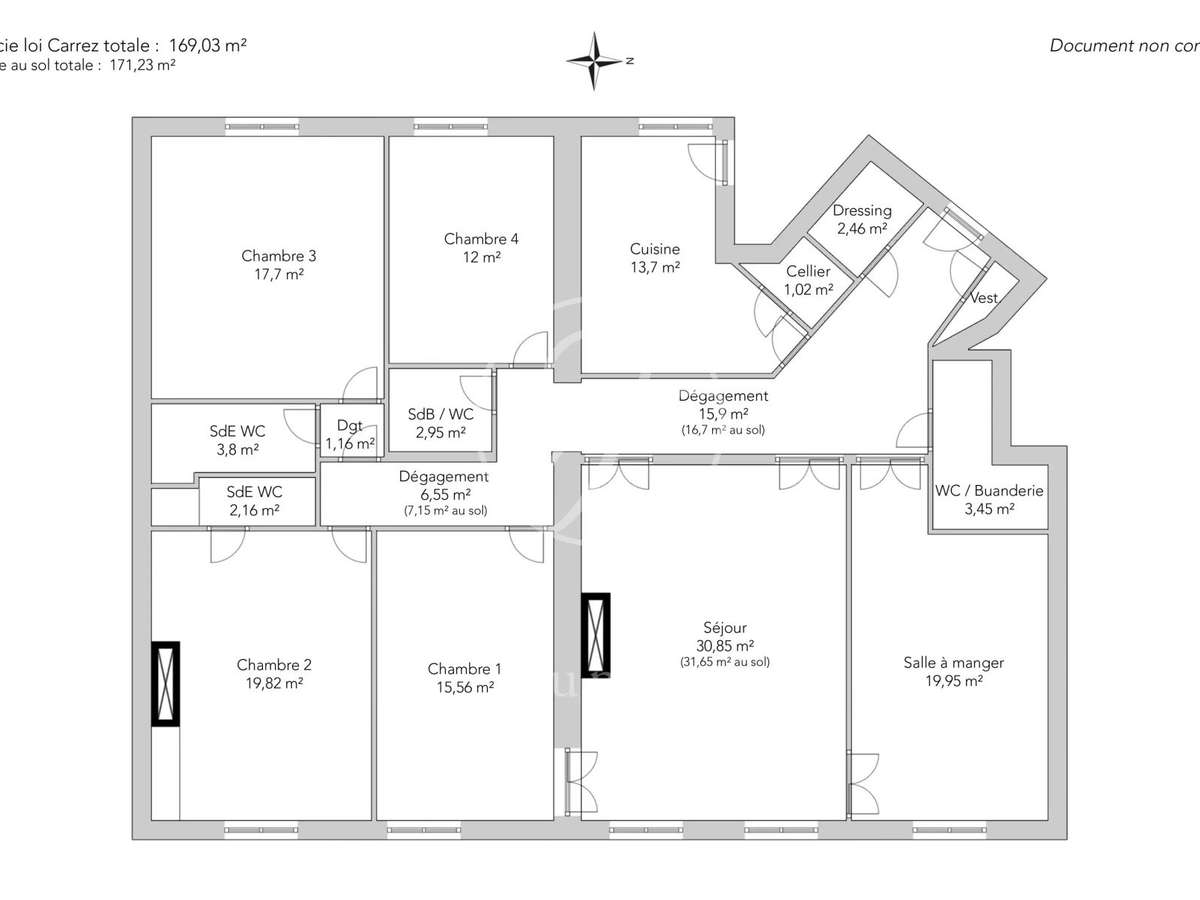
Au cœur du quartier de l’Europe – rue de Saint-Pétersbourg, à la lisière des VIIIᵉ, IXᵉ et XVIIᵉ arrondissements, cet appartement familial et de réception se situe au troisième étage avec ascenseur d’un bel immeuble ancien avec gardien.D’une surface de 169,03 m² loi Carrez, il bénéficie de beaux volumes avec 3,40 m de hauteur sous plafond, d’un plan modulable et de prestations classiques de qualité : parquet, moulures et cheminées.Lumineux et calme, il se compose d’une entrée avec rangements, d’un double séjour sur rue, d’une salle à manger, d’une cuisine indépendante dînatoire, ainsi que de quatre chambres spacieuses, dont deux suites avec salle de douche et toilettes.Une salle de bains et des toilettes séparées complètent l’ensemble.Sectorisation Condorcet.
- Emplacement privilégié à proximité des commerces et transports.
- Beaux volumes avec une hauteur sous plafond de 3,40 m.
Paris 8e - EUROPE / BATIGNOLLES - Appartement à ve
Les informations sur les risques auxquels ce bien est exposé sont disponibles sur le site Géorisques :
Réf : 2994MONVIQ08 - Date : 14/04/2026
LES ATOUTS
CARACTÉRISTIQUES
DIAGNOSTICS ENERGETIQUES
LOCALISATION
NOUS CONTACTER
DEMANDE D'INFORMATIONS
Demander plus d’informations à JUNOT MONCEAU.

























