Appartement Paris 8e - 4 chambres - 166m²
75008 - Paris 8e
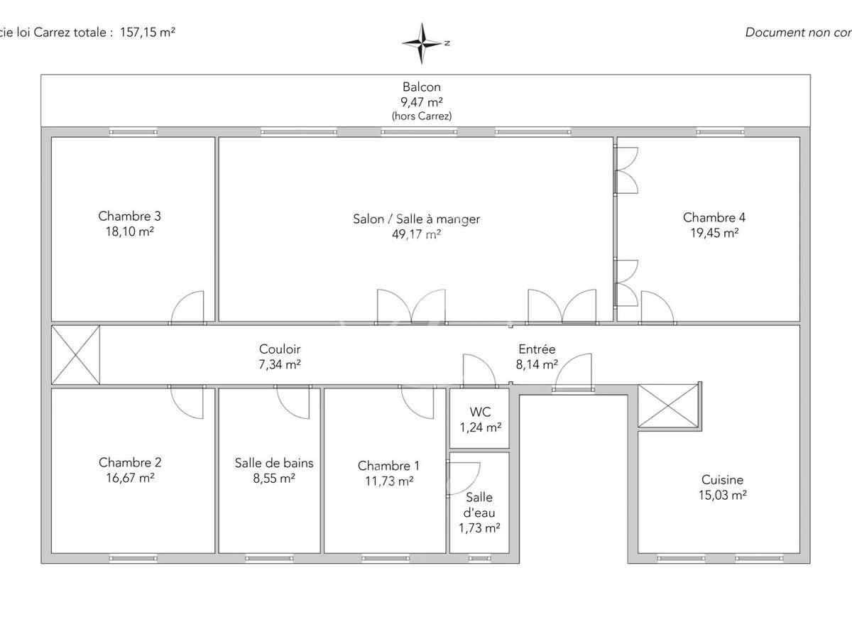
DESCRIPTIF
Idéalement situé, au deuxième étage par ascenseur d'un très bel immeuble en pierre de taille, appartement de réception de 157,15m² loi Carrez est agrémenté d'un balcon filant de 9,47m².Très lumineux grâce à son exposition plein ouest , il comprend une entrée, un très beau séjour ouvert sur le balcon filant, une cuisine semi-ouverte, un salon salle à manger.
Quatre chambres dont une suite avec salle de douche et deux profitent du balcon filant, une salle de bains avec ses toilettes et des toilettes invités.Charme de l'ancien avec magnifiques moulures et cheminée préservés.
Hauteur sous plafond de 3.50m.
Ce bien est à rafraîchir et saura vous séduire grâce à son plan optimisé, sa luminosité et sa localisation.Une cave complète cette offre.
Paris 8e - MADELEINE - Appartement à vendre - 5 pi
Les informations sur les risques auxquels ce bien est exposé sont disponibles sur le site Géorisques :
Réf : 3442ABBRAF/2949MON - Date : 14/02/2026
LES ATOUTS
CARACTÉRISTIQUES
DIAGNOSTICS ENERGETIQUES
LOCALISATION
NOUS CONTACTER
DEMANDE D'INFORMATIONS
Demander plus d’informations à JUNOT MONCEAU.





















