Appartement Paris 7e - 2 chambres - 57m²
75007 - Paris 7e
DESCRIPTIF
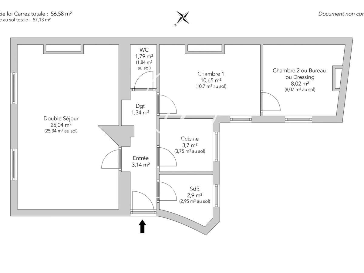
Situé dans le très prestigieux 7ᵉ arrondissement, à proximité de la Seine, des commerces et de lieux emblématiques de la capitale, cet appartement de 56,58m² loi Carrez se trouve au premier étage d’un immeuble bien entretenu avec ascenseur.Son plan modulable comprend une entrée, une cuisine indépendante, un double séjour avec cheminée, deux chambres au calme, une salle de douche ainsi que des toilettes séparées.Cet appartement séduit par son charme et son emplacement recherché, offrant un cadre de vie confortable au cœur de la rive gauche.
- Emplacement de choix à proximité des musées et de la Seine.
- Double séjour lumineux agrémenté d'une cheminée authentique.
Paris 7e - MUSÉE D'ORSAY - Appartement - 3 pièces
Les informations sur les risques auxquels ce bien est exposé sont disponibles sur le site Géorisques :
Réf : 3611STGDIR/2062CHM - Date : 30/04/2026
LES ATOUTS
CARACTÉRISTIQUES
DIAGNOSTICS ENERGETIQUES
LOCALISATION
NOUS CONTACTER
DEMANDE D'INFORMATIONS
Demander plus d’informations à JUNOT 6E.



















