Appartement Paris 7e - 3 chambres - 130m²
75007 - Paris 7e
DESCRIPTIF
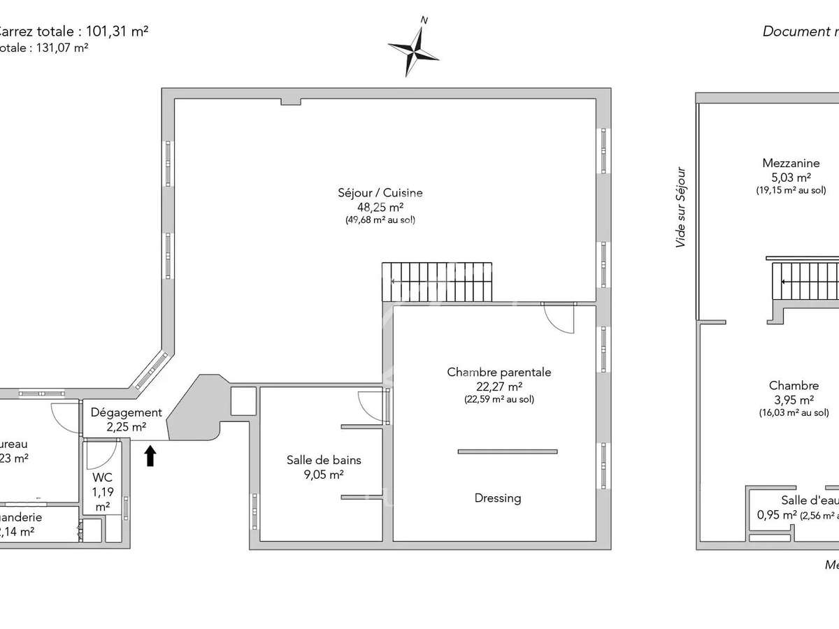
Ce magnifique duplex de 101,31m² loi Carrez et 131,07m² au sol, véritable havre de paix, offre un cadre de vie privilégié avec un bel ensoleillement et une vue dégagée sur la tour Eiffel et sur le ciel.Au dernier étage d'un petit immeuble ancien, très bien entretenu, ce bien comprend une entrée, un séjour traversant est-ouest de 48m², une cuisine ouverte aménagée avec un îlot central et des matériaux nobles, et équipée d’électroménagers Miele, une chambre master avec un vaste dressing, une salle de bains avec douche à l’italienne, baignoire et toilettes.
Ce premier niveau comporte également un bureau pouvant devenir une chambre d'amis, une buanderie et des toilettes invités.Un élégant escalier mène au niveau supérieur pourvu d'une mezzanine ouverte aménagée en bureau agrémenté d'un espace de lecture, une chambre sous les toits avec placard et une salle de douche avec des toilettes.Ce duplex, situé dans une rue au calme, est accessible par ascenseur jusqu'au quatrième étage puis par un escalier privatif.
Il a bénéficié d’une rénovation par architecte au goût contemporain avec des placards sur mesure et la climatisation dans toutes les pièces.Une cave complète cette offre à l'emplacement privilégié, tout proche des jardins du Champ de Mars, des quais de Seine et des commerces du quartier Gros Caillou, avec notamment la rue Cler à cinq minutes à pied.Idéal pied-à-terre ou résidence principale de caractère.
- Vue imprenable sur la tour Eiffel depuis le séjour.
- Rénovation contemporaine avec des matériaux de qualité.
Paris 7e - GROS CAILLOU - Duplex à vendre - 4/5 pi
Les informations sur les risques auxquels ce bien est exposé sont disponibles sur le site Géorisques :
Réf : 3590GREBOL - Date : 20/04/2026
LES ATOUTS
CARACTÉRISTIQUES
DIAGNOSTICS ENERGETIQUES
LOCALISATION
NOUS CONTACTER
DEMANDE D'INFORMATIONS
Demander plus d’informations à JUNOT GRENELLE.















