Appartement Paris 7e - 4 chambres - 167m²
75007 - Paris 7e
DESCRIPTIF
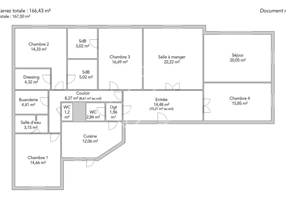
Au sein d'un splendide immeuble de 1930 avec gardien, au deuxième étage par ascenseur, magnifique appartement familial et traversant de 166,43m² loi Carrez.Le plan parfait comprend une galerie d'entrée qui s'ouvre sur un double séjour exposé sud-est et doté d'une vue dégagée sur l'École Militaire, un bureau attenant avec la possibilité d'y créer une triple réception ou une chambre supplémentaire, une cuisine indépendante équipée et des toilettes invités.Côté nuit se trouvent trois belles chambres dont une sur cour, au calme absolu, deux salles de bains, une salle de douche, des toilettes séparées et un espace buanderie.Dans la cour, un emplacement réservé aux vélos est à la disposition des copropriétaires.Une cave complète ce bien qui saura séduire par son emplacement extrêmement prisé, ses vues dégagées, sa hauteur sous plafond de 3 mètres et son charme de l'ancien intégralement préservé avec son parquet, ses moulures et sa cheminée.RARE.
- Emplacement privilégié près de l'École Militaire.
- Bel espace de vie avec double séjour lumineux.
Paris 7e - CHAMP DE MARS - Appartement à vendre -
Les informations sur les risques auxquels ce bien est exposé sont disponibles sur le site Géorisques :
Réf : 3490GREGRA - Date : 18/04/2026
LES ATOUTS
CARACTÉRISTIQUES
DIAGNOSTICS ENERGETIQUES
LOCALISATION
NOUS CONTACTER
DEMANDE D'INFORMATIONS
Demander plus d’informations à JUNOT GRENELLE.






















