Appartement Paris 7e - 2 chambres - 88m²
75007 - Paris 7e
DESCRIPTIF
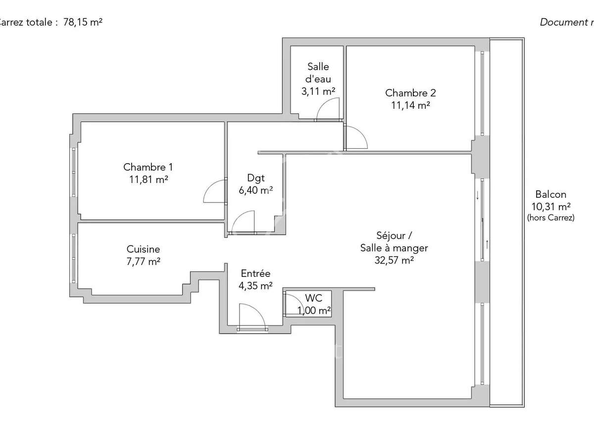
Grenelle / rue Cler.Au sein d'une copropriété de standing datant de 1964, parfaitement placée, bien tenue et sécurisée (gardiennée), appartement traversant de 78.15m² loi Carrez au troisième étage par ascenseur.Très lumineux et en parfait état, il comprend une entrée,un beau séjour de 32.57m² exposé sud avec des portes-fenêtres qui ouvrent sur un balcon de 10.31m², une cuisine aménagée et équipée.Côté nuit, deux chambres au calme avec placards, une salle de d'eau, un dressing et des toilettes séparées.Une cave complète ce bien.Digicode, interphone, local vélos et poussettes.Gardien à demeure.Idéalement placé à proximité des commerces de la rue Cler, écoles et transports.EXCLUSIVITÉ
- Double séjour lumineux avec accès à un balcon de 10m²
- Immeuble récent avec gardien et ascenseur
Paris 7e - GROS-CAILLOU - Appartement à vendre - 4
Les informations sur les risques auxquels ce bien est exposé sont disponibles sur le site Géorisques :
Réf : 2230PASSIS/3355GRE - Date : 03/12/2025
LES ATOUTS
CARACTÉRISTIQUES
DIAGNOSTICS ENERGETIQUES
LOCALISATION
NOUS CONTACTER
DEMANDE D'INFORMATIONS
Demander plus d’informations à JUNOT GRENELLE.















