815 appartements à vendre - Paris
Appartement Paris

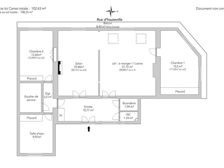
Vente Appartement à Paris
Continuez votre exploration des biens de luxe sur notre portail immobilier dédié aux biens d'exceptions sur toute la France. Nous vous suggérons d'obtenir une vue d'ensemble de notre offre en Appartement sur BellesPierres.com :
































































































































































































































































































































































































































































































































