Appartement Paris 6e - 4 chambres - 198m²
75006 - Paris 6e
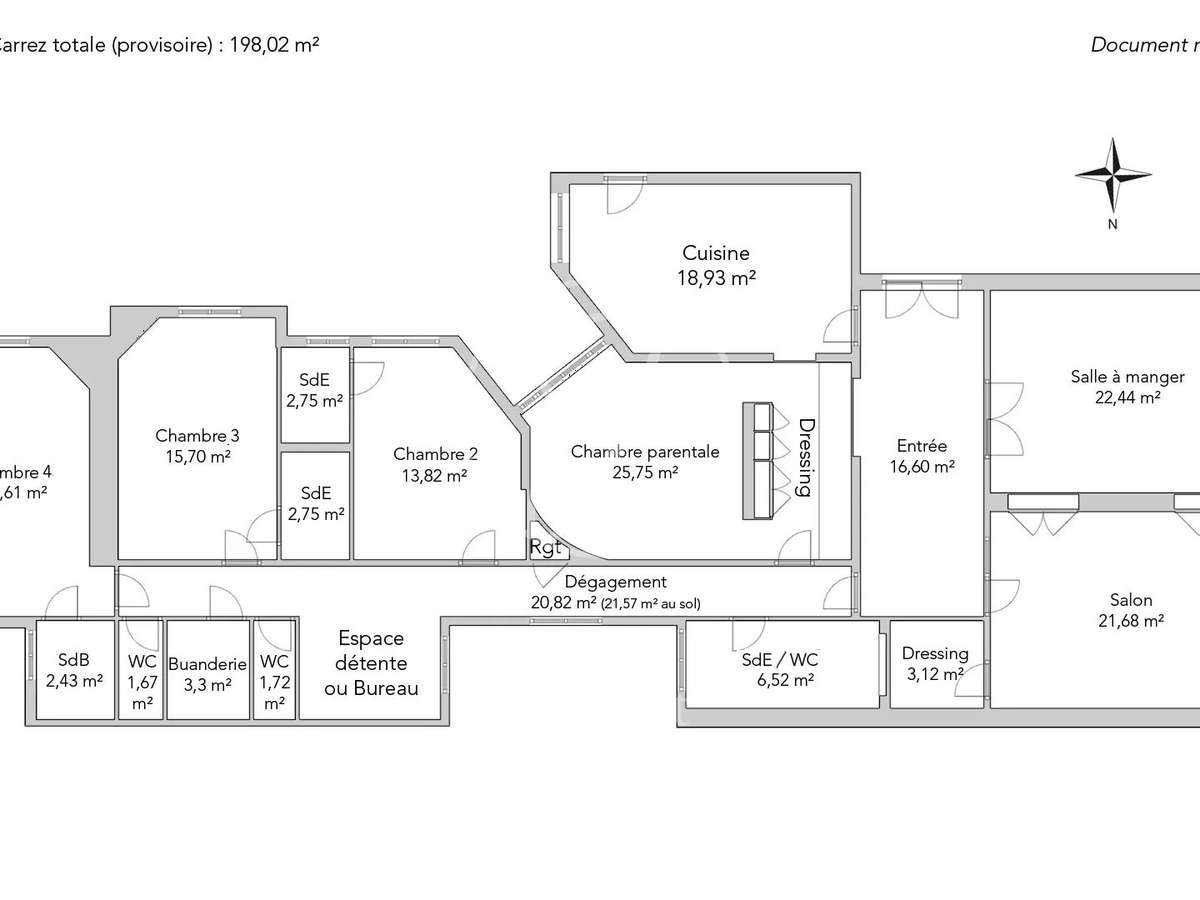
DESCRIPTIF
À la lisière des 5e et 6e arrondissements, à proximité immédiate du jardin du Luxembourg, un remarquable appartement familial de 198,02m² loi Carrez au rez-de-chaussée d’un bel immeuble ancien parfaitement entretenu.Ce bien aux volumes généreux assortis au charme de l'ancien bénéficie d’un plan harmonieux et d'une très belle rénovation récente.
La galerie d'entrée distribue une vaste double réception composée d’un salon et d’une salle à manger, prolongée par une grande cuisine dînatoire séparée et équipée.La suite parentale sur cour végétalisée avec dressing double et salle de douche attenante avec toilettes forme un espace intime et chaleureux.La partie nuit accueille également trois autres chambres aux belles dimensions, également sur cour.
Les deux premières avec chacune sa salle de douche et la dernière avec sa salle de bains.
Dans le dégagement, un espace détente ou bureau, une buanderie et deux toilettes séparées.Les circulations sont optimisées et les espaces parfaitement pensés pour une vie familiale confortable.Calme, fonctionnalité et élégance s'harmonisent au sein de cet appartement rare, idéalement situé à proximité des commerces, des transports et des écoles telles que L'Alsacienne, Sévigné ou Lavoisier.Une cave complète cette offre.
- Emplacement privilégié à deux pas du jardin du Luxembourg.
- Rénovation de qualité alliant charme ancien et modernité.
Lisière Paris 5e et 6e - SAINT-MICHEL / LUXEMBOURG
Les informations sur les risques auxquels ce bien est exposé sont disponibles sur le site Géorisques :
Réf : 1892CHMDEP06 - Date : 18/04/2026
LES ATOUTS
CARACTÉRISTIQUES
DIAGNOSTICS ENERGETIQUES
LOCALISATION
NOUS CONTACTER
DEMANDE D'INFORMATIONS
Demander plus d’informations à JUNOT 6E.























