Appartement Paris 6e - 2 chambres - 83m²
75006 - Paris 6e
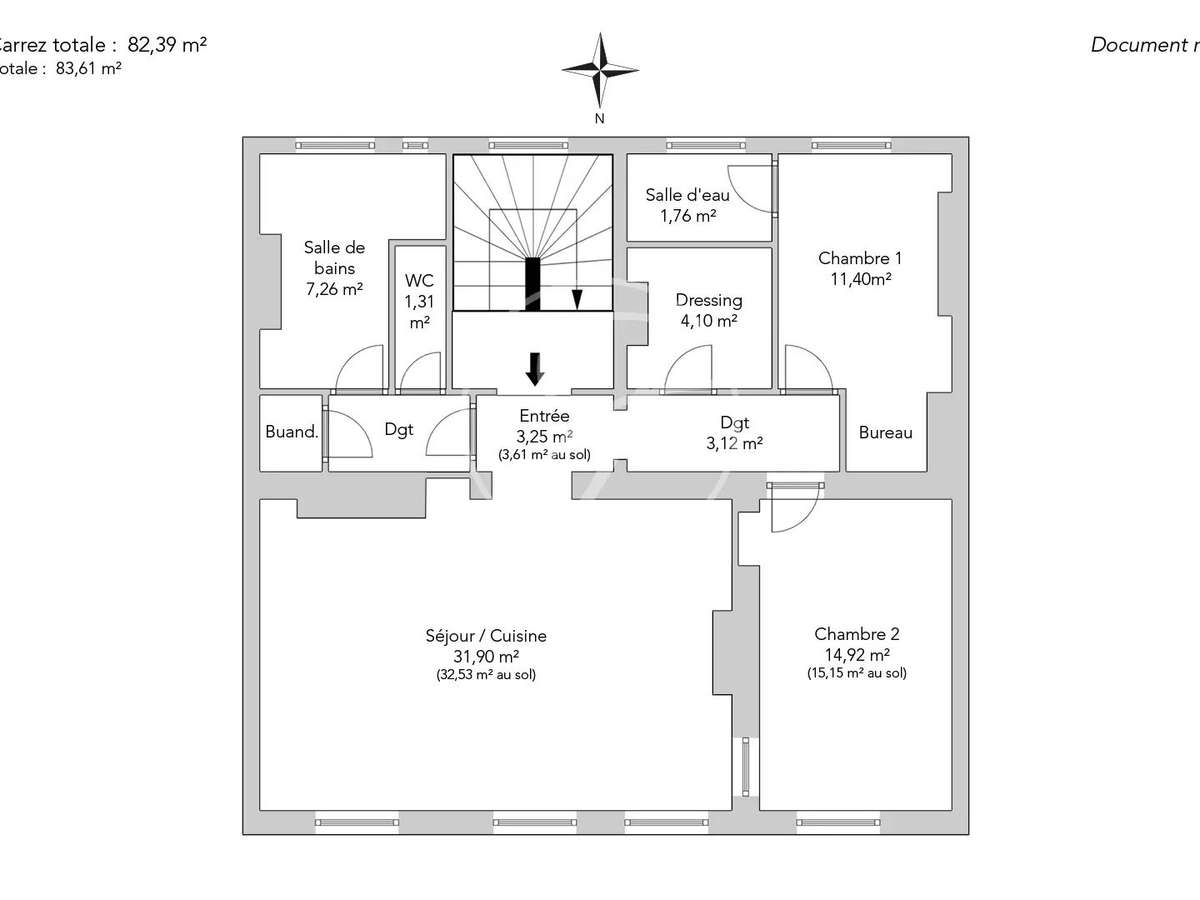
DESCRIPTIF
À la lisière des 6e et 7e arrondissements, au cœur du quartier Sèvres-Babylone, idéalement situé entre le Bon Marché et le Lutetia, au troisième étage par escalier d'un bel immeuble en pierre de taille, découvrez un splendide appartement de 82,39m² loi Carrez sublimé par une rénovationde qualité.Il comprend une entrée, un vaste double séjour avec une belle cuisine en pierre, trois grandes fenêtres sur la rue et une jolie cheminée avec son miroir d'époque.L'espace nuit comporte une grande chambre avec des rangements, une seconde chambre sur la cour avec des rangements, un espace bureau et une salle de douche.Un dressing, une buanderie et une grande salle de bains avec douche et baignoire complètent ce plan optimal.Le bien est climatisé, calme et lumineux.
Une cave complète cette offre.EXCLUSIVITÉ.
- Emplacement privilégié près du Bon Marché et Lutetia.
- Double séjour lumineux avec cheminée et cuisine en pierre.
Lisière Paris 6e et 7e - CHOMEL / BON MARCHÉ - App
Les informations sur les risques auxquels ce bien est exposé sont disponibles sur le site Géorisques :
Réf : 1768CHMGIR06 - Date : 17/03/2026
LES ATOUTS
CARACTÉRISTIQUES
DIAGNOSTICS ENERGETIQUES
LOCALISATION
NOUS CONTACTER
DEMANDE D'INFORMATIONS
Demander plus d’informations à JUNOT 6E.


















