Appartement Paris 5e - 4 chambres - 198m²
75005 - Paris 5e
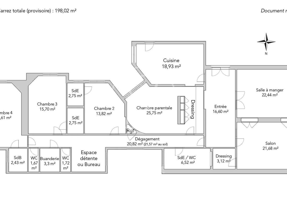
DESCRIPTIF
Situé à proximité immédiate du jardin du Luxembourg, un remarquable appartement familial de 198,02m² loi Carrez au rez-de-chaussée d’un bel immeuble ancien parfaitement entretenu.Ce bien aux volumes généreux assortis au charme de l'ancien bénéficie d’un plan harmonieux et d'unetrès belle rénovation récente.
La galerie d'entrée distribue une vaste double réception composée d’un salon et d’une salle à manger, prolongée par une grande cuisine dînatoire séparée et équipée.La suite parentale sur cour végétalisée avec dressing double et salle de douche attenante avec toilettes forme un espace intime et chaleureux.La partie nuit accueille également trois autres chambres aux belles dimensions, également sur cour.
Les deux premières avec chacune sa salle de douche et la dernière avec sa salle de bains.
Dans le dégagement, un espace détente ou bureau, une buanderie et deux toilettes séparées.Les circulations sont optimisées et les espaces parfaitement pensés pour une vie familiale confortable.Calme, fonctionnalité et élégance s'harmonisent au sein de cet appartement rare, idéalement situé à proximité des commerces, des transports et des écoles telles que L'Alsacienne, Sévigné ou Lavoisier.Une cave complète cette offre.
- Proximité du jardin du Luxembourg pour des moments de détente.
- Rénovation récente alliant confort moderne et charme ancien.
Paris 5e - SAINT-MICHEL / LUXEMBOURG - Appartement
Les informations sur les risques auxquels ce bien est exposé sont disponibles sur le site Géorisques :
Réf : 1892CHMDEP05 - Date : 18/04/2026
LES ATOUTS
CARACTÉRISTIQUES
DIAGNOSTICS ENERGETIQUES
LOCALISATION
NOUS CONTACTER
DEMANDE D'INFORMATIONS
Demander plus d’informations à JUNOT 6E.























